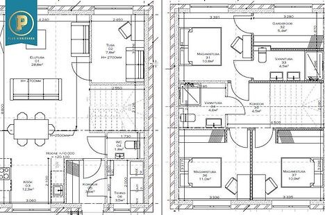
Harjumaa, Raasiku vald, Kulli, Pärtli, Pistriku vkt 25-2
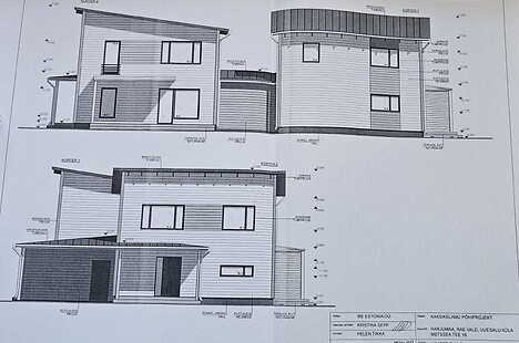
Valmimisjärgus paarismaja osa!
1, logical part, stone house, box with doors and windows, all brand-new, construction ...
Müüa Paarismaja osa, Tallinna kesklinnast ainult 20 minutilise sõidu kaugusel mööda ...