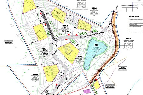
Tartumaa, Kastre vald, Haaslava, Kaasiku tn
Arendusprojekt – 21 kinnistut, valms DP
Detail plan exists, water, public transport
Müüa kehtestatud detailplaneeringuga elamukruntide arendus Tartu linna lähedal, Kaasiku ...
36371 m²
1 150 000 € 31.6 €/m²