Uued A-energiaklassiga kodud Mustamäel
Stone house
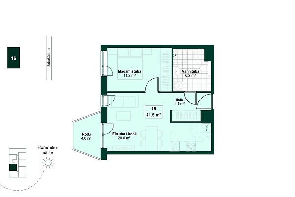
Additional information: balcony 4 m², lift, box-room
Rabaküla 16 kuuekordse elamu uued kodud on loodud neile, kes hindavad turvalist ja inspireerivat elukeskkonda. Ümberkaudsed haljasalad, hoolikalt kavandatud mänguväljakud ja avarad puhkealad loovad sooja kogukonnatunde ning kutsuvad sind ja su pere aega veetma värskes õhus. Siin saavad lapsed kasvada sõbralikus ja turvalises keskkonnas, kus naabritega sõbruneda ja aega veeta mitmetel mänguväljakutel otse kodu kõrval. Mustamäe teest vaid lühikese jalutuskäigu kaugusel asuv naabruskond pakub rahulikku ja vaikset elukeskkonda, kus seejuures kõik vajalik – poed, jõusaalid ja ühistranspordi ühendused – on mugavalt käeulatuses.
Sinu vajadustele loodud kodu
Rabaküla 16 korterid on kavandatud praktilise mugavuse ja paindlikkuse põhimõttel. Kõikidel kodudel on rõdu, kus saad nautida hommikupäikest, õhtust rahu ja kõike, mis nende vahele jääb. Tänu ruumikale planeeringule ja panipaikade rohkusele leiab iga pereliige oma isikliku mugavustsooni. Kui otsustad varakult, on sul võimalus valida sisearhitekti loodud viimistluspakettide vahel, et kujundada kodu täpselt oma maitse järgi.
Energiatõhusus ja mugavus
Rabaküla 16 kodud vastavad A-energiaklassi nõuetele, mis teeb neist eriti energiasäästlikud ja keskkonnasõbralikud. Targad tehnoloogilised lahendused hoiavad energiakulud madalad ning tagavad aastaringse hubasuse. Kvaliteetne soojustus ja energiatõhus planeering võimaldavad nautida mugavust igal aastaajal.
Lisaväärtus hinna sees
Iga koduga tuleb kaasa eraldi panipaik, mis on hinna sees. Parkimise pärast ei pea muretsema – parkimiskohad asuvad mugavalt maja all, elamu kõrval asuvas väliparklas või kaetud väliparklas.
Rabaküla 16 kodud valmivad 2026. aasta märtsis. Tule tutvu naabruskonna, näidiskorteri ja siselahendustega, et ning leia endale uus unistuste kodu!
Juhime tähelepanu, et pildid on illustratiivsed!




