Soodsaim valik uusi kodusid!
Apartment ownership, stone house
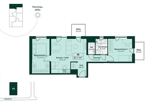
Additional information: balcony 3.5 m², lift, box-room
Communications and security: frontdoor locked
LÄBIMÕELDUD PLANEERING JA KVALITEETNE SISEVIIMISTLUS
Uus-Mustamäele, aadressile Aiandi 14 valmib üheksakordne, kvaliteetsete korteritega elamu. Uutel kodudel on suured aknad ning hoolikalt läbimõeldud planeering, et kodus oleks ruumi asjadele ning hea olla igal pereliikmel.
Standardlahendusena on kodudes kasutatud heledamaid ja põhjamaiseid toone ning lisatasu eest on võimalus valida sisearhitekti poolt koostatud stiilipakettide vahel. Igal kodul on rõdu.
ENERGIATÕHUS KODU
Aiandi 14 korterelamu on modernsed ja funktsionaalsed. Soojustagastusega ventilatsioonisüsteem ja hea soojapidavus tagavad uues kodus kvaliteetse sisekliima ja madalad kodukulud. Uuele elamule omistatakse energiatõhus B-energiaklass.
PANIPAIK JA PARKIMINE
Korteri hinnas sisaldub panipaik, kus saad hoiustada suuremaid sporditarbeid või hooajaväliseid asju. Parkimiskohad on saadaval lisatasu eest ning asuvad väliparklas või majaaluses ja kõrval asuvates kaetud parklates.
NAABRUSKOND
Mustamäe ja Kadaka tee ristmiku piirkonnas, vaikses sisekvartalis asuv Uus-Mustamäe naabruskond on kaasaegseim terviklik elupiirkond Mustamäel, kus on valminud tänaseks juba 500 uut kodu. Naabruskonna südameks on ligi 7000 ruutmeetrine park, kus kogu pere leiab ühiseid ajaveetmisvõimalusi. Lisaks naabruskonna pargile asub kohe uute kodude kõrval mänguväljak väikelastele, et aega saaks mugavalt veeta ka kohe kodu kõrval. Vaata lisa: bonava.ee/mustamae
Loome kodusid ja naabruskondi, kus on hea elada!
Juhime tähelepanu, et pildid on illustratiivsed.




