Kirjeldus

3 Harjumaa, Tallinn, Pirita, Pirita-kose, Nurmiku tee 34

UUS PAKKUMINE PIRITA-KOSEL!

2 korrust, Kinnistu, kivimaja, valmis, heas korras, ehitusaasta 1998, elamispind 216 m², ...

Müüa silmapaistva arhitektuuriga ja avara planeeringuga eramu kõrgelt hinnatud Pirita-Kose piirkonnas. Tuntud arhitekti Maire Annuse projekteeritud kodu pakub privaatsust, valgust ja funktsionaalsust keset rahulikku looduslähedast elukeskkonda.HOONE JA KONSTRUKTSIOONID1998. aastal valminud eramu on rajatud kvaliteeti silmas pidades. Tegemist on tugeva kivimajaga, kus seinad on laotud fibo plokkidest ja välisvoodriks on kasutatud Väo ...

6
302 m²
2 p tagasi
565 000 € 1 871 €/m²

1 Harjumaa, Rae vald, Peetri, Järvesalu tee 5-4

MAJA ON VAMIS! OMA ÕUEALA!

2 korrust, Korteriomand, kivimaja, valmis, uus, elamispind 100.1 m², dušš, wc ja ...

VERTIKAALNE MAAKÜTE, PÄIKESEPANEELID, SOOJUSTAGASTUSEGA VENTILATSIOON, JAHUTUSE VÕIMALUS, ELEKTRIAUTO LAADIJA PAIGALDAMISE VALMIDUS! KÕRGED LAED! MADALAD KULUD!KORTERI JUURDE KUULUB OMA PRIVAATNE ÕUEALA TERRASSI EES!Müüa väga heas asukohas, rohelises ja rahulikus elukeskkonnas paiknev suur perekorter JÄRVESALU TEE 5-4, Tallinna kesklinnast vaid 10 min autosõidu kaugusel, Rae vallas, Peetri alevikus. Vaata lisainfot arenduse kohta ...

4
106.2 m²
358 000 € 3 371 €/m²

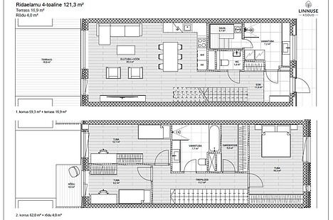
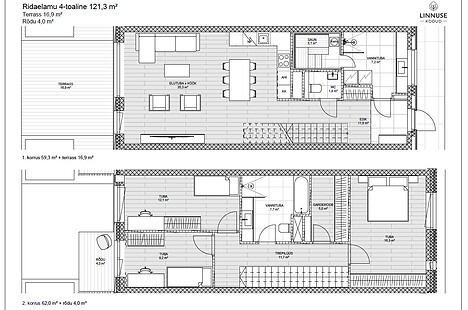
1 Harjumaa, Keila, Keila Mõisapark, Linnuse tn 5-29

VERTIKAALNE MAAKÜTE, PÄIKESEPANEELID! KODU PARGIS!

2 korrust, Korteriomand, kivimaja, uus, ehitusaasta 2026, elamispind 121.3 m², krunt ...

Moodne mugavus Keila mõisapargis - Tule ela linnulaulu ja pargiroheluse keskel!Hooned valmivad 2026. aasta sügiseks.Müügihind sisaldab panipaiga ja parkimiskoha maksumust!Linnuse tee 5 on uusarendus Keilas, kus on mõnus kodukoht 34-le perele, kes armastavad rahu, loodust ja rohket avarust.Ajaloolise Keila mõisapargi servale kerkivad 3- ja 4-toalised rida- ja kortermajad, kus päikeselisel terrassil saab nautida hommikukohvi kõrvale ...

4
149.8 m²
369 000 € 2 463 €/m²

1 Harjumaa, Rae vald, Peetri, Järvesalu tee 4

UUS PAKKUMINE! VERTIKAALNE MAAKÜTE!

2 korrust, Kinnistu, kivimaja, valmis, uus, ehitusaasta 2025, elamispind 217.3 m², krunt ...

WWW.JÄRVESALU.EE - UUS A-ENERGIAKLASSI ERAMU PEETRI SÜDAMES! HOONELE ON VÄLJASTATUD KASUTUSLUBA! ELAMU ON VALMIS! HOONE JA ARHITEKTUURArhitekt Pille Nageli poolt projekteeritud A-energiaklassi eramu lahenduses on arvestatud krundi orientatsiooniga ilmakaarte suhtes. Elamu on paigutatud edelasse jäävast tänavast kaugemale, et jätta maja ette õhtupäikesele avatud eesaed. Hoone on kavandatud L-kujulisena, elamuosa on krundi tagaosas ja ...

6
267.2 m²
1 160 000 € 4 341 €/m²

1 Harjumaa, Rae vald, Peetri, Järvesalu tee 2

MAJA ON VALMIS! VERTIKAALNE MAAKÜTE!

2 korrust, Kinnistu, kivimaja, valmis, uus, ehitusaasta 2026, elamispind 220 m², krunt ...

WWW.JARVESALU.EE - UUS A-ENERGIAKLASSI ERAMU PEETRI SÜDAMES!HOONE JA ARHITEKTUURArhitekt Pille Nageli poolt projekteeritud A-energiaklassi eramu lahenduses on arvestatud krundi orientatsiooniga ilmakaarte suhtes. Elamu on paigutatud kinnistu idaossa ning sissepääsud on kavandatud Kodu tee poolt. Hoone kahekorruseline eluruumide maht joondub Järvesalu tee hoonetega samasuunaliselt, jättes peamised fassaadid ja suured aknapinnad lõuna ...

6
269.4 m²
1 190 000 € 4 417 €/m²

1 Lääne-Virumaa, Rakvere vald, Kohala, Kohala Mõis, Kohalamõisa

AJALOOGA KOHALA MÕIS!

3 korrust, Kinnistu, palkmaja, valmis, heas korras, ehitusaasta 1881, krunt 185254, ...

Mõis ei ole muinsuskaitse all!Kohala mõisas on ühes tiivas väljaehitatud kaks korterit, mis loob suurepärase võimaluse kasutada eluruume eraldiseisva majaosana.Müüa Rakvere vallas asuv ajalooline Kohala mõisakompleks, mille näol on tegemist arvestatava turisimi- ja puhkekohaga Lääne-Virumaal. Mõisa erinevad saalid ja ümbritsev loodus võimaldavad korraldada nii kümne inimese koosolekut, kui kahesaja osalejaga pikniku mõisapargis. Mõisas ...

22
2326 m²
950 000 € 408 €/m²

Näidislaenumakse

Laenutähtaeg: 20 a
Sissemakse: 30%
Intress alates: 3,5%