A-energiaklass
Korteriomand, kivimaja
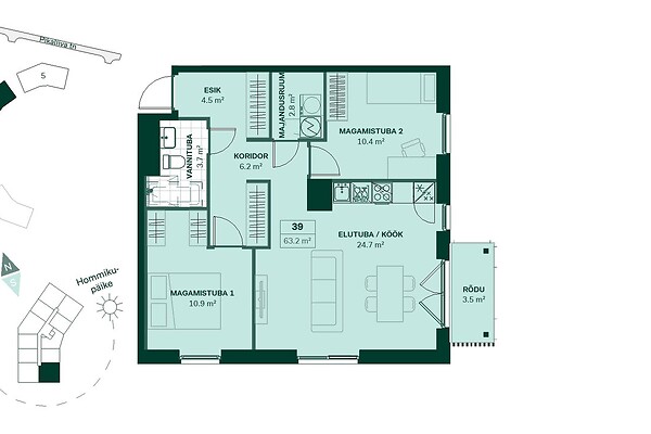
Lisainfo: rõdu 3.5 m², panipaik
Kaasaegne ja energiatõhus 3-toaline korter rõdu ja avara elutoaga
See 63,0 m² suurune korter pakub kvaliteetset ja funktsionaalset elukeskkonda, kus energiatõhusus ja läbimõeldud ruumilahendus tagavad mugavuse igapäevaelus. A-energiaklass ja vesipõrandaküte loovad ühtlase ning meeldiva sisekliima, samas kui maast laeni aknad lisavad ruumidele avarust ja valgusküllasust.
Elutuba ja köök (24,6 m²) moodustavad avatud ja õhulise ala, kus suurte akende kaudu avaneb vaade rõdule ja väliskeskkonnale. Köök on disainitud praktiliselt, pakkudes piisavalt tööpinda ja panipaiku. See ruum sobib ideaalselt nii igapäevaseks eluoluks kui ka külaliste võõrustamiseks. Korteris on kaks magamistuba (10,9 m² ja 10,4 m²), mis pakuvad privaatset ja rahulikku elukeskkonda. Need sobivad hästi nii peamiseks magamistoaks kui ka laste- või kodukontoriruumiks. Vannituba (3,7 m²) on sisustatud kvaliteetsete viimistlusmaterjalidega ning majandusruum (2,0 m²) lisab kodu funktsionaalsust, pakkudes ruumi kodumasinatele ja hoiustamiseks.
Esik (4,4 m²) ja koridor (6,2 m²) on ruumikad ning praktilised, sisaldades piisavalt panipaiku, et igapäevased esemed oleksid korrastatult hoiustatud.
3,5 m² suurune rõdu on ideaalne koht, kus nautida hommikukohvi ja avarat vaadet rahulikule sisehoovile. Tänu korteri paigutusele on võimalik nautida nii hommiku- kui ka õhtupäikest, pakkudes loomulikku valgust kogu päeva vältel.
Korter ühendab kaasaegse arhitektuuri, kvaliteetse viimistluse ja energiatõhusad lahendused, olles ideaalne valik neile, kes hindavad mugavust, stiili ja praktilisust.
Pikaliiva Kaarmaja neljast elamust moodustub kaunis poolkaar, mille keskmeks on hubane hooviala. Õdusas reljeefse maastikuga sisehoovis ootavad elanikke puhkeala ja mänguväljakud igas vanuses lastele. Naabritega koosolemist ja elu nautimist pakub päikesele avatud grilli- ja puhkeala koos piknikulaudade, väligrilli ja pergolaga. Parkimiskohad asuvad nii väliparklas kui ka maa-aluses parklas, mis lisab hoovile ruumi ja avarust. Pikaliiva elamud teevad energiasäästlikuks ja kaasaegseks päikesepaneelid ning nutikodu lahendus.
Uued kodud on sissekolimiseks valmis!
Tutvu lähemalt: bonava.ee/pikaliiva




