A-energiaklass
Korteriomand, kivimaja
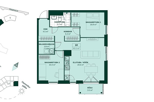
Lisainfo: rõdu 3.5 m², panipaik
Pikaliiva Kaarmaja 4-korruselised elamud moodustavad poolkaare, mille keskel asub looduslähedane ja mitmekülgne hooviala. Arhitektuur ühendab sooja puitu ja õhulist klaasi, luues modernse, ent koduse miljöö. Elanikke ootab privaatne sisehoov, kus on mitmed mängu- ja puhkealad, grilli- ja piknikuala, välitrenniala ning reljeefne maastik, mis loob elurikkust ja avastamisrõõmu igal sammul.
Korter on hoolikalt läbi mõeldud ning viimistletud heledates ning looduslähedastes toonides, pakkudes rahulikku ja ajatut elukeskkonda. Kõrged aknad ja mugav planeering toovad tuppa avarust ja õhulisust.
Panipaik ja parkimine
Korteri hinna sees sisaldub isiklik panipaik, mis võimaldab hoida hooajavälised või sporditarbed alati käepärast, kuid silma alt ära. Parkimine on korraldatud kas maja all asuvas garaažis või väliparklas, pakkudes mugavat ja ilmastikukindlat lahendust. Parkimiskoht on lisatasu eest ning hind vastavalt asukohale.
Ümbruskond
Pikaliiva Kaarmaja asub hinnatud Pikaliiva asumis, mille vaiksed, rohelust täis tänavad ja ajalooline miljöö loovad hubase ja koduse tunde juba esimesest hetkest. Jalutuskäigud mööda rahulikke kõrvaltänavaid või Harku järve äärsetel terviseradadel pakuvad võimalust igapäevaselt aeg maha võtta. Läheduses asuv Rocca al Mare keskus ning mitmed spordiklubid teevad igapäevased toimetused lihtsaks ja mugavaks.
Pikaliiva Kaarmaja kodud on sissekolimiseks valmis.
Tule tutvu uue kodu ja sisustatud näidiskorteriga!
bonava.ee/pikaliiva




