Suur privaatne elamumaa ehitusloaga ja projektiga!
Plot area 2607, detail plan exists
Additional information: water, electricity, sewerage, public transport
Neighbourhood: surrounding buildings private houses, near forest, roads in good condition roads
VÕIMALIK VAHETUS TEIE KINNISVARA VASTU!
Bermuda Design Studio https://bermuda.ee/ projekt!
Müüakse ainulaadne maatükk pindalaga 2607 m2 Laitses.
Saadud ehitusluba eksklusiivse ja kaasaegse 5-toalise “Barn House” stiilis maja ehitamiseks!
Hind sisaldab krunti, ehitusluba ja projekti koos kogu dokumentatsiooniga.
Projekt sai valmis 2024. aastal ning vastab kõigile kehtivatele standarditele ja määrustele.
Maja on mõeldud mugavaks elamiseks - antud planeering sobib igale perele!
Kinnistu asub väga vaikses, privaatses ja eraldatud kohas.
Müüdav kinnistu on ümbritsetud kahe tohutult suure riigimetsa maatükkiga (29701:001:0275 ja 29705:045:0010) - pindalaga kokku 368 hektarit!
Kinnistul on oma mets!
Tupiktänav!
Viimane krunt!
AÜ sissepääs on väravast!
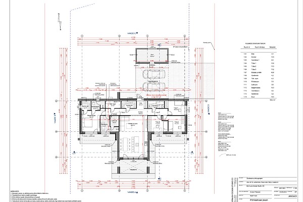
MAJA/PLANEERING
Kogupind 160,3 m2, elamispind 145,3 m2
Esik (3,1 m2): Ettenähtud sisseehitatud riidekapp
Koridor (15,9 m2): Koridorist on sissepääs igasse ruumi.
Avatud köögiga elutuba (45,6 m2): Lae kõrgus 5,5 meetrit, panoraamaknad ja 2 väljapääsu kaetud terrassile, avatud köök, puhkenurk.
Magamistuba 1 (10,4 m2) Vaade metsale.
Magamistuba 2 (11,3 m2) Vaade terrassile.
Magamistuba 3 (11,2 m2) Vaade terrassile.
Magamistuba 4 Master (16 m2) Väljapääs terrassile, isiklik vannituba (4,5 m2) duši ja sisseehitatud tualetiga, Walk-In garderoob (3,2 m2).
Vannituba (4,5 m2): vann, sisseehitatud wc, valamu ja segisti.
Garderoob (4,2 m2)
Tehnoruum (4,3 m2): eraldatud, õhksoojuspumba töötamist pole kuulda ja elamist ei sega.
Puhkeruum saunaga (7,5 m2): Dušš, puhkenurk, väljapääs terrassile ja sauna.
Saun (3,6 m2): Privaatne ja hubane, elektriahi.
Mugav varikatus mahutab 2 autot ja eraldab sissepääsu majja ja panipaika.
Panipaik (15 m2): avar ruum majapidamis- ja isiklike asjade hoiustamiseks.
KONSTRUKTSIOON, TEHNOSÜSTEEMID JA DOKUMENTATSIOON
Välisseinad: Fibo plokid - 200 mm + soojustus 200 mm + krohv või puitvooder.
Aknad: PVC aknad, seest viimistletud vastavalt sisedisainile, väljast tumehallid, Perfect Term, profiili laius 80 mm, 6-kambriline profiil, 3 tihendiga.
Puidust tumehallid välisuksed.
Küte: õhk-vesi soojuspump, paigaldatud tehnoruumi.
Soojuspump kütab põrandaid ja toodab sooja vett.
Hoones on ettenähtud soojustagastusega ventilatsioonisüsteem.
Vesi, kanalisatsioon ja elekter: võimalik lokaalne liitumine. Elekter objekti piiril.
Kommunikatsioonidega liitumine ei sisaldu hinnas.
Kaevude, kanalisatsiooni ja elektriühenduse 3x25A maksumus kokku on 19 500 eurot (seisuga oktoober 2024).
Lähiaastatel on vallal plaanis rajada tsentraalne veevärk ja kanalisatsioon. Leping vallaga on juba sõlmitud.
Link kõikidele dokumentidele – https://drive.google.com/drive/folders/1CZxz2uHVBAdYR89gjExMWWj_uWG93o_W?usp=share_link
ASUKOHT JA PIIRKOND
Objekt asub Tallinnast vaid 25 minuti autosõidu kaugusel.
Linnapiir on 26 km kaugusel.
Ruila Algkool asub 6,7 km kaugusel (10 minutit autoga)
Kirsiaia lasteaed asub 3,5 km kaugusel (autoga 6 minutit).
Pihelga bussipeatus asub 850 meetri kaugusel.
Laitse raudteejaam asub 5 km kaugusel (autoga 9 minutit), Tallinna kesklinna jõuab 45 minutiga.
Suur Laitse kauplus asub 5 km kaugusel (9 minutit autoga)
Vaatamisväärsused ja meelelahutused:
Laitse loss 3 km
Laitse Graniitvilla 3,4 km
LaitseRallyPark 5,7 km
Rummi Karjäär 13 km
Ruila järv 7 km
Ruila Tall Ratsaspordiklubi 6,5 km
Asukoht
Koordinaadid: 59.217204, 24.367126.
Link Google Maps: https://maps.app.goo.gl/UzoXMm6FwCCMZMwX7
MUU TEAVE
Ehitusluba väljastati 09.09.2024 ja selle kehtivusaeg on 5 aastat.
Kui ehitamine on alanud, kehtib ehitusluba 7 aastat.
Projekti järgi saab see maja energiatõhususe klassi “B”. Võimalus saada A klass, kui teha lisaprojekt päikesepaneelidele.
Objekti omanik on arhitektuuribüroo Bermuda Design Studio OÜ: https://bermuda.ee/
Antud ettevõte viis selle projekti lõpule ja võib pakkuda ka oma lisateenuseid:
ehitusprojekt
sisekujundus
maastikukujundus
tehniline järelevalve
ehitusaudit
Krundi hinnale lisandub käibemaks (22%).
Küsimuste korral võtke meiega julgelt ühendust!
Lisapakkumised ja teenused meie poolt:
- HÜPOTEEKLAENUDE SAAMINE JA REFINANTSEERIMISE ABI
- KINNISVARA OST KIIRMÜÜGI HINNAGA
- JURIIDILISED TEENUSED
- KVALITEETNE REMONT
- RENOVEERIMINE
- ERITELLIMUSMÖÖBEL
- KINNISVARAHALDUSTEENUS
- FINANTSEERIMINE




