Soodushind 169900 eur!
Stone house
Additional information: parquet, furnishing possibility, roof apartment, high ceilings
Valminud on uus kahekorruseline kortermaja värskelt uuendatud Kastani puiestee ääres. Vaid 7 korteriga butiikmaja pakub elanikele piisavalt privaatsust, maja asukoht aga kõiki kesklinnas elamise eeliseid.
Kortermaja koosneb kahest omavahel trepikojaga ühendatud hoone osast ning saadaval on ühe- kuni kolmetoalised korterid. Korterid on avarad ja viimistletud heledates toonides. Lagede kõrgus ruumides on tavapärasest suurem, olenevalt korterist 2,7 kuni 3,1 m. Maja ehitusel ja korterite viimistlusel on erilist rõhku suunatud kvaliteetsetele materjalidele ning ehitustööde kvaliteedile.
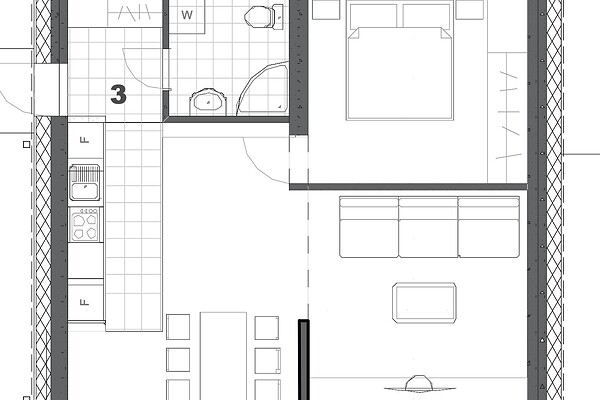
3- toaline korter suurusega 52 m2 asub 2- kordse hoovimaja 2. korrusel ja hõlmab tervet korrust, kõrvalasuvad naabrid puuduvad. Tegemist on väga vaikse ja privaatse korteriga.
TEHNILINE INFO
Hoone on rajatud lintvundamendile, kandev konstruktsioon on betoonplokkidest ja vahelaed on raudbetoonist õõnespaneelid. Korterite vahelised seinad ja ka korterite siseseinad on laotud betoonplokkidest. Kipsplaate ehituses kasutatud ei ole. Kõikidesse korteritesse on paigaldatud tavapärasest kõrgemad välis- ja siseuksed (2300mm)
Hoone projekteeritud energiaklass B
Küttesüsteem õhk-vesi soojuspump, korterites põrandaküte
Igal korteril eraldi reguleeritav ventilatsiooniseade
Korteripõhine elektri-, vee- ja soojaarvestus
Tavapärasest paksem soojustuskiht seintel
Maksimaalse helipidavuse tagavad kolmekordse klaasiga aknad, mänguväljaku poolsel küljel tulekindlad pakettaknad, välismüra ruumidesse ei kostu.
Madalad kommunaalkulud (kogukulude suurusjärk 1,0-2,0€/m2)
Kokkuleppel ka mööbli võimalus.
ASUKOHT
Kortermaja vahetus läheduses asuvad kõik linna peamised spordirajatised ja -keskused, pallimänguväljakud ja välijõusaal. Samuti haridus- ja kultuuriasutused, lähimad neist Riigigümnaasium ja Ukuaru kontserdimaja. Lastega pered saavad aega veeta maja kõrval asuval 4000 m2 suurusel Rakvere peremänguväljakul.
PARKIMINE
Iga korteri hinna sisse kuulub parkimiskoht ühele autole hoone territooriumil. Võimalus paigaldada ka laadija elektriauto jaoks. Külaliste jaoks on tagatud väga head parkimisvõimalused Kastani puiesteel.
Võimalik osta korter ka ilma parkimiskohata (soodustus -3000€).
Saadaval on lisaks kahetoalistele ka kaks ühetoalist ja üks kolmetoaline korter.
Võimalik tutvuda sisustatud näidiskorteriga!




