Üksikelamu koos abihoonega (autode varjualune ja panipaik)!
Private property, wooden house, total area 203.8 m²
Sanitary arrangements: shower, sauna, separate toilet room and bathroom, washing machine, urban water, sewerage
Heating and ventilation: air to air heat pump, Air-water heat pump, combined heating, fireplace
Kitchen: refridgerator, kitchen furniture
Additional information: dressing room, terrace, electricity, box-room, parking free parking, roof tin roof
Communications and security: steel door
Neighbourhood: water body sea near
Introducing a newly completed detached home and attached carport and utility space in one of Viimsi's areas
The building was granted its usage permit on November 6, 2024. Designed by renowned architect Ülle Maiste, this home has been thoughtfully crafted to meet the needs of a modern family.
The property features a picturesque pond with koi fish, offering a perfect spot for relaxation and enjoying nature's beauty.
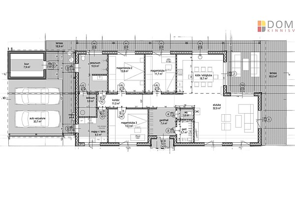
House and Layout
The single-story home is situated on a 1,344 m² plot, with a building footprint of 203 m².
Heated area: 136.9 m² (living space: 128.9 m²).
Auxiliary building footprint: 56.3 m² (including a 7.9 m² storage room with electricity).
Spacious terraces on the southern and western sides of the house.
The plot is fenced on three sides, with a driveway gate and a pedestrian gate.
At the heart of this home is a 51.6 m² bright and open living room with a fireplace and a kitchen, featuring windows on three sides that fill the space with light and provide beautiful views.
Additional Features:
3 bedrooms, each with direct access to the terrace or outdoors.
A large bathroom with a sauna.
Technical and utility rooms.
An entrance hall with a built-in wardrobe and a separate WC.
Technical Details and Energy Efficiency
Heating: air-to-water heat pump with underfloor heating throughout the house (room-specific temperature control).
Additional air-to-air heat pump in the living room for cooling, plus a cozy fireplace.
Flooring: ceramic tiles in the entrance hall and kitchen-living room; durable, scratch- and moisture-resistant LVT vinyl flooring in the bedrooms.
Heat recovery ventilation system ensures energy efficiency and fresh air year-round.
Location and Surroundings
An ideal location for families who value convenience and nature:
Püünsi School – approx. 1.5 km.
Rohuneeme Store – approx. 1 km.
Bus stop – just 400 m away (serving both city and local routes).
This is a perfect family home combining beautiful design, energy-efficient technology, and a peaceful living environment. The spacious layout and high-quality materials make this house a dream home for any family.
Contact us to schedule a viewing and see your future home!
Only for Domus Kinnisvara clients: the best home loan terms from Luminor. When applying for a home loan, use the campaign code DOMUS. Offer valid until 30 June 2026.




