apartment for sale, 2 rooms - Mäepealse tn 9/2-31, Nõmmemäe, Nõmme, Tallinn, Harjumaa

Avarate vaadetega uued kodud Nõmme piiril

Apartment ownership, panel house

Heating and ventilation: central heating, heated floors
Additional information: balcony 4 m², lift, box-room, underground garage

Nõmmemäe on uus, terviklik ja mitmekesiste võimalustega elupiirkond looduskauni Nõmme serval, kus kohtuvad kaasaegne arhitektuur, rohelus ja aktiivne eluviis. Siia kerkib kolm korterelamut 1–4-toaliste kodudega, suuruses 31–78 m². Mäepealse 9/2 kodud valmivad 2027. aasta veebruaris.

Mugav ja hästi läbimõeldud kodu igapäevaseks eluks:
- Avarad rõdud ja terrassid – privaatne õueruum, kus nautida hommikukohvi, rohelust või õhtupäikest.
- Panipaik hinna sees – mugav hoiukoht hooajavarustusele või lapsevankrile.
- Maja-alune garaaž – ilmastikukindel ja turvaline parkimisvõimalus.
- Spordiruum, rattahoolduspunkt ja lemmiklooma käpapesu – mugavused aktiivseks eluks.

Mitmekülgne ja kogukondlik hooviala:
Nõmmemäe hoovides ootavad lapsi mänguväljakud, liivakastid, mudaköök ja kiiged, täiskasvanutele on loodud puhkealad, väligrill, istutuskastid ja kasvuhoone. Sisehoovis kasvavad viljapuud ja marjapõõsad, mis lisavad nii silmailu kui ka elurikkust.

Tõeliselt energiatõhus kodu:
Kõik korterid kuuluvad A-energiaklassi ja on varustatud päikesepaneelidega, mis aitavad hoida igapäevased kulud kontrolli all.

Loodus ja linn tasakaalus:
Nõmmemäe asub vahetult metsapiiri ääres, kust viivad väikesed rajad Glehni parki ja Nõmme välibasseinide ning suusaradadeni. Jalutuskäigu kaugusel on ka armastatud Nõmme turg ja mitmed vaba aja veetmise võimalused.

Vaata lisa ja võta ühendust: bonava.ee

Object link

Ads for this development

Rooms Total area Floor Price
1 rooms 31.8 m² 5/8
1 rooms 31.9 m² 8/8
1 rooms 31.9 m² 6/8
1 rooms 31.9 m² 7/8
2 rooms 45 m² 7/8
2 rooms 45 m² 6/8
2 rooms 37.6 m² 3/8
2 rooms 42 m² 6/8
2 rooms 37.7 m² 7/8
2 rooms 37.7 m² 8/8
2 rooms 42 m² 8/8
2 rooms 41.9 m² 5/8
2 rooms 37.6 m² 5/8
2 rooms 44.9 m² 5/8
2 rooms 44.7 m² 4/8
2 rooms 41.8 m² 6/8
2 rooms 44.7 m² 5/8
2 rooms 44.9 m² 7/8
2 rooms 44.9 m² 6/8
2 rooms 45 m² 8/8
2 rooms 44.7 m² 3/8
2 rooms 37.6 m² 7/8
2 rooms 41.8 m² 7/8
2 rooms 41.9 m² 5/8
2 rooms 37.6 m² 3/8
2 rooms 37.6 m² 6/8
2 rooms 37.6 m² 5/8
2 rooms 44.9 m² 7/8
2 rooms 41.8 m² 8/8
2 rooms 44.9 m² 5/8
2 rooms 37.6 m² 4/8
2 rooms 42 m² 7/8
2 rooms 37.7 m² 6/8
3 rooms 64.3 m² 4/8
3 rooms 63.8 m² 3/8
3 rooms 61.2 m² 6/8
3 rooms 63.8 m² 5/8
3 rooms 64 m² 8/8
3 rooms 63.7 m² 4/8
3 rooms 64.2 m² 4/8
3 rooms 60.9 m² 5/8
3 rooms 63.7 m² 6/8
3 rooms 60.9 m² 7/8
3 rooms 60.9 m² 5/8
3 rooms 63.8 m² 4/8
3 rooms 64 m² 6/8
3 rooms 61.2 m² 7/8
3 rooms 61.2 m² 8/8
3 rooms 63.6 m² 2/8
3 rooms 64.3 m² 2/8
3 rooms 64.3 m² 3/8
4 rooms 77.7 m² 2/8
4 rooms 77.7 m² 3/8

Contact

By sending this message you also agree with KV.EE's terms of use and privacy policy
Development

Nõmmemäe Kodud

Mäepealse tn 9
View project
Contact
Andre Himuškin The user has been identified
Bonava Eesti OÜ
Kärolin Koitla
Kärolin Koitla The user has been identified
Bonava Eesti OÜ
211 990 € 4 721 €/m²
Apartment for sale
Apartment for sale www.kv.ee/en/3790516
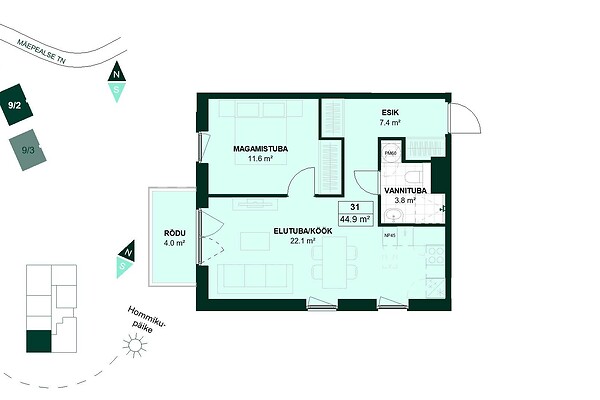
Rooms 2
Bedrooms 1
total area 44.9 m²
Floor/Number of floors 6/8
Built in year 2026
Condition Development
ownership form apartment ownership
Energy mark A
Data from realestate book
Notify about incorrect advertisement
Object inside info 14.99€ / 24
Object's history and statistics
Activated
Views
Contacted by e-mail
Phone number views
Favorited
Similar ads

Example loan payment

Loan period: 20 y
Self-financing: 30%
Interest from: 3,5%