apartment for sale, 3 rooms - Laulupeo tn 2, Kesklinn, Tallinn, Harjumaa

Avar ja sisustatud kesklinna kodu!

Apartment ownership

Additional information: cloakroom, roof tar paper roof

Müüa väga heas asukohas suur kolmetoaline korter. See on ideaalne kodu neile, kes otsivad avarat ja suurt korterit Tallinna kesklinnas!

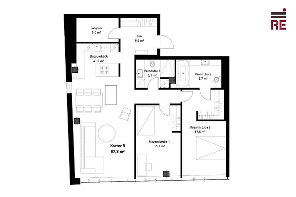
KIRJELDUS
Tegemist on mugava planeeringuga koduga. Korterisse astudes on paraja suurusega esik ning lisaruum, mida saab kasutada garderoobina või panipaigana. Kodu keskmeks on suur avatud köök ja elutuba, avarust lisavad peaaegu kogu seina ulatuses suured aknad. Lisaks on kaks keskmisest suuremat magamistuba, millest üks on master-bedroom koos oma garderoobi ja vannitoaga. Kokku on kaks märgruumi, millest ühes on dušh ja teises vann.

SISUSTUS & VIIMISTLUS
Korteris on olemas kõik vajalik kohtmööbel - köök, garderoobid, kardinad. Köögimööbel on valmistatud eritellimusena ARS-i poolt ning on varustatud Bosch integreeritud tehnikaga (ahi, nõudepesumasin). Köögi saarel on pliit ja õhupuhasti.
Elutoas ja magamistubades on piltidel nähtav mööbel. Kõikides tubades on kvaliteetsed heledad tüllkardinad. Esikus ja magamistoa juures on garderoobikapid. Märgruumides on kvaliteetne santehnika ning Siemens-i pesumasin ja kuivati.
Siseviimistluses on kasutatud neutraalseid toone ning põrandaid katab naturaalne harjatud tammeparkett. Korteris on mürasummutavad kolmekordsed alumiiniumaknad, vaated korteri akendest jäävad Laulupeo tänava poole.

VENTILATSIOON JA KÜTE
Hoones on kaugküte ja soojustagastusega ventilatsioonisüsteem, mida saab vastavalt soovile korteris reguleerida. Samuti on hoones tsentraalne vesijahutus.

PARKIMINE
Laulupeo tänaval kehtib linna parkimine, parkimiskohad on olemas. Tallinna linna elanikuks registreerides on parkimistasu vaid 10 € kuus (120 € aastas).

PIIRKOND
Laulupeo 2 asub Kadrioru vahetus läheduses Kesklinnas. Läheduses on kaubanduskeskused (Stockmann, Viru Keskus, Sikupilli), mitmed söögikohad ning ühistranspordiga saab kiiresti võtta suuna Tallinna teiste linnaosade või Ülemiste ja Lennujaama suunas. Kadrioru park jääb vaid 15 minuti jalutuskäigu kaugusele.

Võta minuga julgelt ühendust ja lähme tutvume lähemalt!

RE Kinnisvara AS on tegutsenud 1995. aastast, olles üks vanimaid Eesti kinnisvaraettevõtteid.
Pakume kinnisvaraga seotud täisteenust:
- äri- ja elamispindade maaklerteenus
- kinnisvara hindamine laenu tagatiseks, sh kohtutele, finantsaruandluseks jne.
- äri- ja elukondlike arendusprojektide müügikorraldus
- kinnisvaraturu ja -projektide analüüs ja konsultatsioon
- kinnisvara seadustamine
Teeme koostööd kõigi Eesti pankade ja finantsasutustega. Meie eksperthinnangud on aktsepteeritud kõigi Eestis tegutsevate krediidiasutuste poolt.
Tutvu lähemalt re.ee.

RE Kinnisvara AS – PARIM OSA KINNISVARAST
Helista 66 88 666 või saada e-mail i****@R**.ee
https://facebook.com/re.kinnisvara
https://www.instagram.com/rekinnisvara/
https://ee.linkedin.com/company/re-kinnisvara

Object link

Contact

By sending this message you also agree with KV.EE's terms of use and privacy policy
RE Kinnisvara AS
RE Kinnisvara AS
View company's profile
Contact
349 000 € 3 569 €/m²
Apartment for sale
Apartment for sale www.kv.ee/en/3769467
Rooms 3
total area 97.8 m²
Floor/Number of floors 4/6
Built in year 2015
Condition Good condition
ownership form apartment ownership
Cadastre no. 78401:112:0036
Energy mark B
Data from realestate book
Notify about incorrect advertisement

SAA ÜLEVAADE KUULUTUSE KÄEKÄIGUST!

Object inside info 14.99€ / 24
Object's history and statistics
Activated
Views
Contacted by e-mail
Phone number views
Favorited
Similar ads

Example loan payment

Loan period: 20 y
Self-financing: 30%
Interest from: 3,5%