Krunt ridaelamu ehituseks! projekt! ehitusluba!
Plot area 1104, detail plan exists
Müüa arenduskrunt kolme boksiga ridaelamu ehituseks!
Vastavalt kehtestatud detailplaneeringule on koostatud projekt ja väljastatud ehitusluba!
Müüa ehitusõigusega elamumaa (100%) sihtotstarbega hoonestamata krunt Tartu maakonnas, Elva vallas, Elva linnas, Nõmme tänaval. Planeeringuala jääb looduslikult atraktiivsest Elva-Peedu metsapargist ca 40 m kaugusele ja linna keskusest 500 m kaugusele.
Krundi suurus 1104 m2. Detailplaneering kehtestatud.
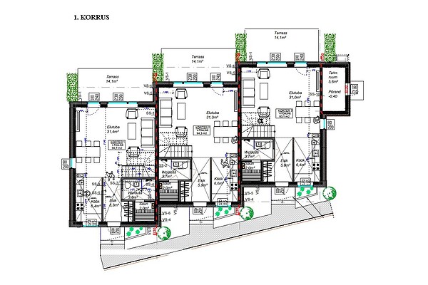
Vastavalt kehtestatud detailplaneeringule on koostatud projekt kolme boksiga ridaelamu ehituseks.
Energiaarvutusel põhinev energiamärgis A.
Projekti edastan soovi korral tutvumiseks e-posti teel.
Ehitusluba ridaelamu ehituseks väljastatud 12.09.2024.
Müügihind 117 000 €, millele lisandub käibemaks.
Tänav hiljuti remonditud (2025 suvi), pildimaterjalis lisatud täiendavalt tänava vaade.
Krundi piiril tänaval on välja ehitatud veetrass, reoveekanalisatsioonitrass, sademeveekanalisatsioon (Emajõe Veevärk AS), elektrivõrk (Elektrilevi OÜ) ja sidevõrk (Telia Eesti AS).
Tehnovõrkude varustamise aluseks on võrguettevõtjate tehnilised tingimused.
Vastavalt kehtestatud detailplaneeringule on määratud krundile ehitusõigus:
Krundile on lubatud ehitada üks põhihoone (kolme boksiga ridaelamu) ja üks mitteehitusloakohustuslik abihoone. Põhihoone suurim lubatud kõrgus maapinnast on 8,5 m. Mitteehitusloakohustusliku abihoone võib olla ehitisealuse pinnaga kuni 20 m2 ja suurima lubatud kõrgusega 5 m. Abihoone funktsioon võib olla näiteks jäätmemaja, jalgrataste hoikoht, kuur vmt abihoone. Ridaelamu esifassad peab olema liigendatud, kuid põhimaht peab paiknema kindlaks määratud ehitusalal ja ehitusjoonel. Ridaelamu fassaadid peavad olema igast küljest esinduslikud.
Krundi sihtotstarve - 100% elamumaa (ridaelamu maa)
Hoonete suurim lubatud arv krundil - 2 (1 põhihoone / 1 abihoone)
Hoonete suurim lubatud ehitusalune pindala - 200 m2
Hoonete suurim lubatud (abs)kõrgus - 8,5 m (põhihoonel) / 5 m (abihoonel)
Hoone arhitektuursetest nõuetest on planeeringuga piiritletud:
Planeeritud ehitise lubatud kasutamise otstarve: 11221 Ridaelamu
Hoone lubatud suurim korruselisus: 2 korrust
Hoone lubatud katusekalded: 10-30 kraadi
Hoone lubatud katusekatte materjal: kivi, plekk
Hoone lubatud välisviimistluse materjalid: kivi, krohv, betoon, puit, klaas
Krundi piirded võivad olla kuni 1,2 m kõrgused ja peavad sobituma hoone arhitektuuri ja ümbritseva keskkonnaga. Lubatud piirete materjalid on puit-, metall- ja võrkpiire. Lubatud on hekkide rajamine. Piirdeid võib rajada mööda katastriüksuse piire.
Parkimine on ette nähtud krundisiseselt, juurdepääs tagatakse avalikult teelt. Planeeritud parkimiskohtade arv krundil - 5.
Planeeringuala asub Elva linna edelaosas, keskusest ca 500 m kaugusel. Ala paiknemine suhteliselt keskuse lähedal ja samas vaikses üksikelamu rajoonis loob sinna soodsad elamisvõimalused. Samuti lisab piirkonda atraktiivsust Elva-Peedu metsapargi paiknemine planeeringuala lähedal ca 40 m kaugusel planeeritavast kinnistust. Planeeringualast ca 1 km kaugusele jääb Arbi järv supelrannaga ning ca 1,5 km kaugusele Verevi järv supelrannaga.
Lähimad teenuseid pakkuvad asutused nagu kool, lasteaed, kauplused, perearstid, apteegid ja raamatukogu jäävad planeeringualast ca 200 m kuni 1 km raadiusesse kesklinna. Lähimad ühistranspordi peatused (Lille, Turuplatsi) asuvad planeeringualast ca 750 m kaugusel.
Helista ja küsi lisa!
Piret Jerlakas
Kutseline maakler




