house for sale, 4 bedrooms - Tähe tee 20, Saku, Saku vald, Harjumaa

Uus ökonoomne kodu a-energiaklass

Private property, stone house, house area 132.6 m², total area 144.9 m²

Sanitary arrangements: shower, sauna, water boiler, sewerage, urban water
Heating and ventilation: heated floors, geothermic heating
Communications and security: Internet
Additional information: dressing room, electricity, box-room, public transport, terrace, parking free parking, parquet, packet windows, 3*380V, other wall, roof tin roof
Neighbourhood: surrounding buildings private houses, roads in good condition roads

LOODUSE VABADUS, LINNA LÄHEDUS
Uus ja ökonoomne kodu kaasaegsete lahendustega.
Majal on A-energiaklass.
Maja valmib varsti.

KINNISTU
Kinnistu suurus on 1503m2. Maja on ümbritsetud aiaga ja rajatud on haljastus.
Notariaalse kasutuskorra alusel on määratletud maa-ala ja 3 parkimiskohta.

PLANEERING
Avara kahekorruselise majaosa üldpind on kokku 144,9 m2, millele lisandub suur päikseline terrass 23m2 , mis on osaliselt katusega kaetud. Maja on hästi läbimõeldud planeeringuga ja toetab pere igapäevaelu vajadusi ja mugavust.

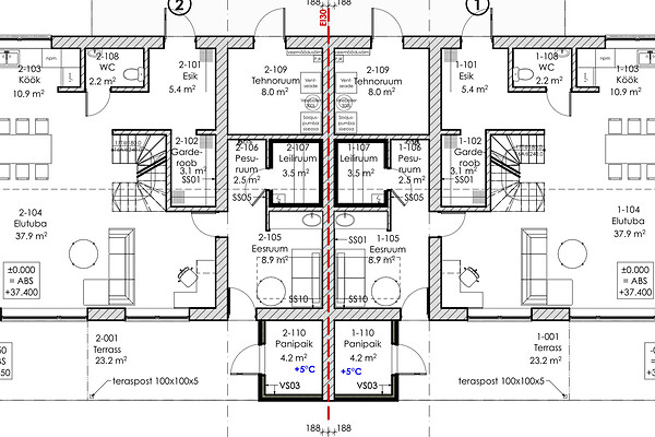
I-korrus
Esimesel korrusel paikneb esinduslik sissepääs garderoobiga, avar elutuba köögi ja söögitoaga ning pääs väliterrassile. Lisaks on esimesel korrusel ka saun suure eesruumi ja pääsuga terrassile, pesuruum, leiliruum, elektrikeris ning eraldi tualett.

Elutoas on suured maani aknad vaatega sisehoovi. Seetõttu on maja alati valgusküllane. Väljast viib uks ka tehnoruumi ja maja taga hoovipoolses küljes on panipaik.

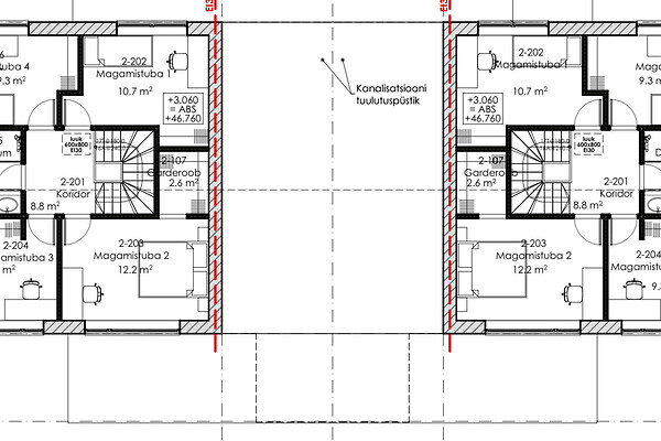
II-korrus
Teisele korrusele viib ilus puidust trepp. Seal paiknevad 4 magamistuba ja WC/dušširuum, kus on ka kraanikauss. Ühe magamistoa juures on garderoob.

SISEVIIMISTLUS
Eramu põrandaid katab enamuses väga vastupidav ja kauni naturaalse disainiga laminaatparkett, mis on uus hinnatud põrandakatte materjal ning vee ja kahjustuste kindel. Saunas, esikus ja vannitubades on tumedad suuremõõtmelised kvaliteetsed põrandaplaadid. Siseviimistluses on kasutatud heledaid toone.

KÜTE JA VENTILATSIOON
Küttesüsteemiks on maakütte baasil vesi-põrandaküte, mis on igas toas eraldi reguleeritav ning kvaliteetse õhuvahetuse tagab Zehnderi soojustagastusega ventilatsioonisüsteem. Lisaks on maakütte baasil toimiv jahutussüsteem. Kummalgi majaosal on oma maakütte süsteem.

EHITUSINFO
Maja on ehitatud valatud plaatvundamendil. Bauroc 375mm kivimaja fassaadil on kasutatud fassaadikrohvi ja puitlaudist.

Katuse kattematerjalina plekk ja ühekordetel osadel SBS materjal. Soojustusena kasutatud PIR plaati, kivivilla ning puistevilla. Terrassid on puittalastikul immutatud laudiskattega. Vahelagi õõnespaneelidest ning kasutatud mürasummutusvilla.
Aknad ja terrassiuksed on PVC raamidel 3x klaaspakett. Välisuksed on värvitud MDF uksed. Siseuksed on valged, tihendiga tahveluksed. Mittekandvad 1 korruse vaheseinad on Bauroc plokist ja 2 korruse vaheseinad on metallkarkassil kipsseinad ja kohati vajadusel seinatugevdustega.
ASUKOHT
Tähistaeva uusarenduse asukoht on hoolikalt valitud – ühendades looduse rahu ja Saku keskuse mugavused. Seal elades tekib harmoonia nii looduse kui kogukonnaga.

Kodu lähedal on valgustatud terviserada, mänguväljakud, välijõusaal, ilus mets ja jõgi.

Saku keskuses asuvad gümnaasium, lasteaed, jalgpallistaadion, bussipeatused, poed ning ilus park.
Tallinn jääb 15 min sõidu kaugusele.

Pildid on illustreerivad.
Maja valmib sissekolimiseks 2026 aasta alguses

Oled oodatud majaosaga lähemalt tutvuma !

Domare Kinnisvara OÜ
Helista meile kõigis kinnisvaraküsimustes- ost, müük ja üür.
Sind nõustavad kogemustega ja tunnustatud maaklerid.
www.domare.ee

Object link

Contact

By sending this message you also agree with KV.EE's terms of use and privacy policy
Domare Kinnisvara OÜ
Domare Kinnisvara OÜ
View company's profile
Contact
469 000 € 3 237 €/m²
House for sale
House for sale www.kv.ee/en/3764205
Rooms 6
Bedrooms 4
total area 144.9 m²
Number of floors 2
Built in year 2026
Condition all brand-new
ownership form private property
Ground area 1503 m²
Cadastre no. 71901:001:0697
Energy mark A
Data from realestate book
Notify about incorrect advertisement

SAA ÜLEVAADE KUULUTUSE KÄEKÄIGUST!

Object inside info 14.99€ / 24
Object's history and statistics
Activated
Views
Contacted by e-mail
Phone number views
Favorited
Similar ads

Example loan payment

Loan period: 20 y
Self-financing: 30%
Interest from: 3,5%