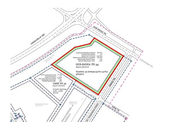
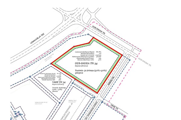
Plot area 9625, detail plan exists
Neighbourhood: roads in good condition roads, location in the center location, Sauga jõgi river 320 m
KEHTIVA DETAILPLANEERINGU JA HEA ASUKOHAGA KINNISTU
Uus-Sauga tn 54 krunt (9625 m2) on Pärnu linnas väga hea infrastruktuuriga asukohas olev tootmis- (50%) ja ärimaa (50%). NB! Kinnistule on lubatud ehitada kuni 4800m2 ehitisealuse pindalaga tööstus/büroohoone! Krundil on kehtiv detailplaneering. Paralleelselt on kinnisvaraportaalides eraldi müügis ka naaberkinnistu Vahe tn 34 (pindalaga 4211 m2).
Kinnistu asub 2,5km Pärnu kesklinnast. Via baltica maantee trass liigub Pärnu linna küljel kinnistu lähedusest mööda. Rail Balticu planeeritav Pärnu peatus asub 8-minutilise autosõidu kaugusel. Kinnistu on väga hea ligipääsetavusega, nii jalgsi, sõiduautoga kui ka veoautoga.
Detailplaneeringuga sätestatud ehitusõigus on järgmine:
Krundile tohib ehitada TP-1 kuni TP-3 tulepüsivusklassiga hooned. Krundile ehitatavad hooned võivad olla ühe- kuni kahekorruselised. Hoonete arvu krundil ei piirata. Maksimaalne ehitisealune pind on 4800m2. Maksimaalne hoone kõrgus on 14m. Maksimaalne täisehitusprotsent on 50%.
NB! Huvi korral pakuksime täislahenduse teenust kinnistule tööstus-, äri- või laohoonete arendamisega. Aitame valmis mõelda Teile sobiva lahenduse ning pakume valminud ideele projekteerimis- ning ehitustöid. Ehk pakume täiskomplektset lahendust: kinnistu ostust kuni hoonete kasutusloa väljastamiseni.
Kinnistul kitsendused puuduvad. Tehing toimub otse omanikult, maakleri tasusid ei ole! Hinnale lisandub käibemaks.
Huvi korral vastame meeleldi lisaküsimustele, nii kinnistu kui ka ehitustööde osas!




