Elegants pangahoones – Kapitaalselt uueks renoveeritud korterid!
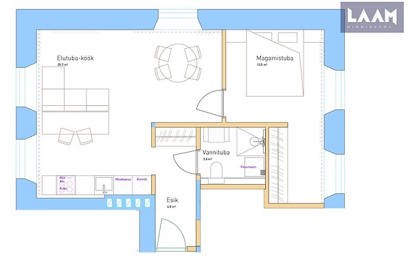
Apartment ownership, stone house
Sanitary arrangements: shower
Heating and ventilation: central heating
Additional information: electricity, parquet, water
[this is property footer]
Object link
LAAM Kinnisvara OÜ View company's profile




