Sinu unistuste kodu maal, Tallinnast ca 28 min!
Plot area 33639
Additional information: electricity, public transport
Neighbourhood: location outside settlement location, near forest, beach length 69 m, distance from Tallinn 47.0 km, neighbours next to neighbours, Kauste oja river , roads paved roads
Haruldane võimalus soetada endale linnalähedane krunt suurusega 3.37 hektarit. Kõik see asub vaid 28-minutilise autosõidu kaugusel linna piirilt mööda kiiret 4-realist Tallinn-Tartu maanteed. Kinnistu asub kiirteelt 2 km kaugusel kuhu viib asfalteeritud Ojasoo-Ardu maantee.
Projekteerimistingimused + kehtiv elamu ja abihoone ehitusluba koos reoveepuhastiga.
Idülliline vana talukoht, kaunis maastik, metsatukk, oma põllumaa ning Rava küla toredad naabrid.
Hoovialal majesteetlik õunapuu, kased, saared, toomingas ja tammepuu kasvatamas kiigeoksa pere võsukestele.
Krundi piiril lookleb Kausta oja, mille kaldale võimalus rajada nt väike saunamajake, kus nautida ümbritsevat loodust ja end värskendada puhtas allikavees.
Ardu 5 minutilise autosõidu kaugusel, seal lähim pood, lasteaed ja põhikool. Kinnistu piirilt mööda rahuliku liiklusega Ojasoo-Ardu maanteed pidi Ardu poole liikudes algab 1km pärast asfalteeritud ja sõiduteest eraldatud kõnnitee, mida mööda lapsed saavad turvaliselt ise kooli liikuda. Muidugi Rava bussipeatus otse kinnistu kõrval. 9 minutilise autosõidu kaugusel Paunküla veehoidla, kus saab ujuda, kalastada, paadiga sõita või veesporti teha. Kose vaid ca 12-minutilise autosõidu kaugusel.
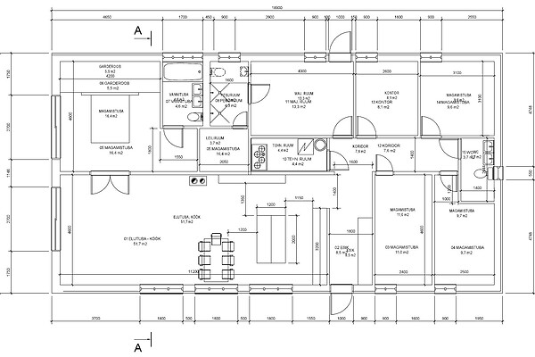
Kinnistule on kavandatud A-energiamärgisega elamu ehitusaluse pindalaga 189.9 m² millest eluruumide pind 162.1 m², planeeritud 1 korruseline kuid projekteeritud võimalusega väljaehitada ka teine korrus. Hoone on klassikalise kujuga, järgides ümbruskonna taluarhitektuuri.
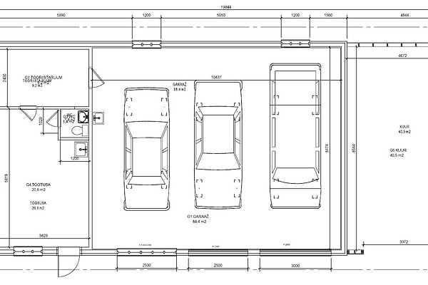
Samuti kavandatud abihoone ehitusaluse pindalaga 178 m² millest suletud netopind 160.1 m², kus paikneb kontorihoone, rohkelt ruumi panipaigale, autokohad garaažis 3-le ja hoone parempoolses servas veel varjualune neljandale autole.
Kavandatud veel puurkaev ja biopuhasti. Olemas ka vana maakividest ehitatud kaev, mis hetkel pole kasutusel, kuid kommunikatsioonid (toru + elekter) on veetud maa sisse, seega paari liigutusega on vesi kasutada.
Kinnistul asub muljetavaldav 125 aastane pae- ja maakividest kelder (ehitusaasta1900), mis projekti järgi korrastatakse veinikeldriks ning mille katusele rajatakse vaba-aja veetmise ala koos välivanni mullibasseiniga.
Siin naudid tõelist rahu ja oled osa loodusest, ka videol kuulda olev linnulaul on salvestatud siin samas!
Kõik kavandatud rajatised on projektide ja jõusolevate ehituslubadega kaetud, löö aga kopp maasse!
Valguskaabliga kiire internet liigub kinnistu äärest mööda, liitumine võimalik.
Elektriliitumine 3x16A.
Haritav maa: 1.25 ha
Looduslik rohumaa: 0.46 ha
Metsamaa: 1.52 ha
Õuemaa: 0.05 ha
Muu maa: 0.08 ha
Kinnistu ülevaatus eelnevalt kokkuleppel koos omanikuga, omal käel kinnistu külastamine pole lubatud. Videovalve.
Tee julgelt omapoolne pakkumine.




