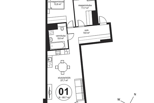
Kitchen and wardrobes included in the price!
Apartment ownership, stone house
Heating and ventilation: central heating, heated floors, conditioner
Additional information: balcony 3.6 m², packet windows, furnishing possibility, high ceilings, parking free parking, underground garage, box-room, lift, parquet
Elu Maja is more than just a home — it is the art of living.
Located on the edge of the Old Town at Kopli 2, unique architecture, historic charm and modern comfort come together in perfect harmony.
Elu Maja features 32 unique apartments. The through-building layouts allow you to admire views of the Old Town from your sun-filled living room or enjoy a peaceful moment in a courtyard-facing bedroom. Every apartment has a balcony offering breathtaking views in every season.
One building, three identities
Each section of Elu Maja has its own personality, offering a distinctive appearance, refined design and carefully crafted finishes — much like a perfectly tailored suit.
Natural materials dominate the building’s material palette: wood, stone, painted metal and glass create the diverse and elegant atmosphere characteristic of the Kalamaja district. Sustainability is also at the heart of the project. Solar panels, secure bicycle storage rooms and readiness for electric vehicle charging in the underground garage support an environmentally conscious lifestyle. Apartments are equipped with individual cooling systems to ensure a comfortable indoor climate even on hot summer days.
Every home is a unique work of art
In collaboration with interior architecture studio Ace of Space, we have created a diverse selection of interior finish packages inspired by the historic street names of Kalamaja. Each package offers a unique combination of design, materials and finishes, allowing you to create a home that truly reflects your personality.
A location at the crossroads of lifestyles
Here, nature, culture and an active lifestyle meet. You will be surrounded by green parks and seaside walking paths, inspiring art galleries, theatres and endless opportunities for movement and leisure. The location is also well loved for the Balti Jaama Market as well as its restaurants and cafés, where every visitor is welcomed with warmth.
Valuing durability and aesthetics
Elu Maja has been designed and built by Kaamos Ehitus with a strong focus on quality and energy efficiency, confirmed by ISO certifications. The building stands on a shallow foundation, with exterior walls primarily constructed from prefabricated reinforced concrete panels insulated with innovative rigid phenolic foam boards. Sound-insulating internal walls and the work of highly qualified engineers ensure a reliable result. We are so confident in our quality that we provide a 3-year warranty for both the building and the apartments. The building has an A energy class rating.
A home defined by space, security and quality
The apartments feature energy-efficient wood-aluminium triple-glazed windows that keep warmth inside and noise outside, creating a peaceful and comfortable environment. Secure, sound-insulated entrance doors ensure privacy and peace of mind. Ceiling heights up to 2.8 metres add a true sense of spaciousness to every room.
Engineering solutions for the ideal home climate
Water-based underfloor heating supported by district heating allows individual temperature control in each apartment. Mechanical ventilation equipped with CO₂ and humidity sensors keeps the air fresh and the indoor climate optimal year-round. Each apartment also has its own cooling system to maintain a pleasant indoor temperature during hot summer days.
Modern convenience
The building has a central domestic hot water system efficiently heated in the heating substation. The electrical system is equipped with modern outlets and switches for convenience and safety. Energy-efficient solutions and modern infrastructure ensure a comfortable and worry-free living environment.
Additional options for Elu Maja residents
It is possible to purchase a private storage room and a parking space in the warm underground garage together with the apartment. Each parking space is prepared for electric vehicle charging. A shared bicycle parking area is located under the building. In the inner courtyard, children can safely enjoy a playground and spend time outdoors.
Kaamos Marketplace
Kaamos Marketplace is your personal home-design environment where you can confirm interior finish selections, order a kitchen with appliances, wardrobes and stylish interior products.
Access to Kaamos Marketplace is exclusively available to Kaamos apartment buyers by personal invitation. The registration link will be sent by the sales manager before signing the contract under the law of obligations.
If you feel that Elu Maja is the place where you would like to create your home, please contact us and allow us to support you on this journey.
Our professional team is ready to answer all your questions and help you take the first steps toward purchasing an apartment in Elu Maja. Your new life begins here.
The price includes a designer kitchen with appliances, a hallway wardrobe and a bedroom wardrobe. Furniture installation is scheduled for the end of April.
More information:
https://kaamos.ee/elumaja/




