Kaasaegne büroo Tartu kesklinnas! 122m ²- 285,1m²
Total area 122.1 m²
Heating and ventilation: central heating
Communications and security: Internet, steel door, video cameras, security system, frontdoor locked
Additional information: garage, lift, electricity, water
Sanitary arrangements: ventilation, urban water
Neighbourhood: water body river near, in the city location, surrounding buildings apartment buildings, roads in good condition roads
Alates augustist 2025 anda üürile pind hinnatud asukohas Tartus kesklinnas.
Alates 01.08.2025 anda üürile valgusküllane ja kaasaegne büroopind atraktiivses asukohas Tartu kesklinnas, Emajõe vahetus läheduses.
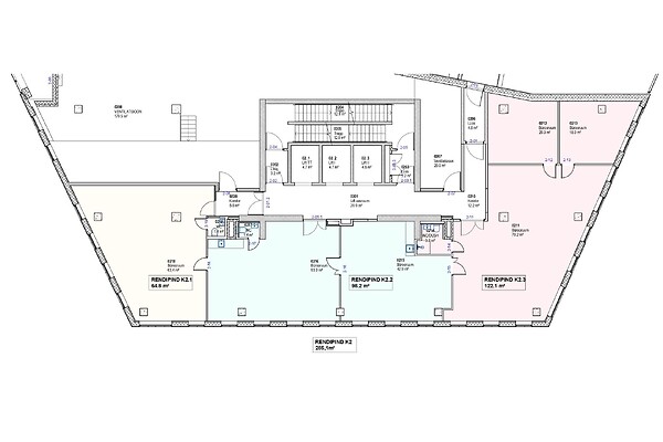
Pind asub modernses ja esinduslikus büroohoones teisel korrusel ning selle suurus on 122,1 m². Bürool on avatud tööala ning kaks suuremat privaatset kabinetti, samuti pesemisvõimalusega sanitaarruum (plaanil tähistatud roosa värviga). Suured aknad avanevad Emajõe ja Anne kanali suunas, pakkudes igapäevaseks tööks inspireerivat ja valgusküllast keskkonda.
Soovi korral on võimalik büroopinda laiendada, liites juurde plaanil rohelise ja kollase värviga tähistatud alad. Sellisel juhul suureneb kogu üüripind 220,3 m²-ni või isegi 285,1 m²-ni, võimaldades vajadusel luua avaramad töötingimused või rohkem eraldi ruume.
Hoones on kolm kiiret lifti. Sissepääs hoonesse on võimalik mugavalt mobiiliga. Privaatsed tualettruumid paiknevad üüripinnal.
Üüripinnaga kaasnevad head parkimisvõimalused omatöötajatele ja külalistele. Iga 100 m² kohta sisaldub üürihinnas 1 parkimiskoht. Parkimismajas saavad külalised ja omatöötajad parkida tunnihinna alusel või üürida parkimiskohti hinnaga 56 € kuus (sisaldab käibemaksu). Parkimise iseteenindussüsteem võimaldab üürnikul sisestada rohkem sõidukite registreerimisnumbreid, kui on üüritud kohti – arvestus käib kasutuses olevate kohtade alusel. Parkimismajas on olemas elektriauto laadimise võimalus. Parkimismajas on ka turvaline jalgrattaparkla, hoone 1. korrusel asuvad lisaks dušširuumid jalgratturitele. Lisaks parkimismajale on külalistele maja ees linna parklas tasuta parkimine kuni kaheks tunniks.
Hoones on söögikoht River Cafe – ideaalne koht kiireks ja maitsvaks lõunapausiks.
2020. aastal valminud hoonel on LEED-sertifikaat, mis kinnitab selle energiatõhusust ja keskkonnasõbralikkust.




