Rahulik paik uue kodu loomiseks. Ehitus on alanud!
Apartment ownership, stone house
Additional information: balcony 32 m², lift, terrace, basement, closed balcony, box-room, underground garage, high ceilings
EHITUS ON ALANUD!
UUS ja hubane kodu kesklinnas, mille märksõnaks on kaasaegne, rahulik ja roheline elukeskkond.
www.koduallee.ee
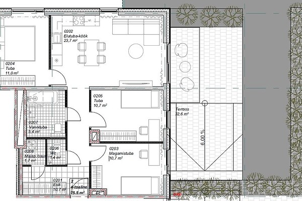
Asula 14a-2 on ridaelamu mugavustega kodu kesklinnas!
/ Avar terrass 32 m2
/ Klaasitud osa terrassist 6,5 m2
/ Terrassilt pääs murule
/ Privaatne sisehooviala
/ Soe maa-alune garaaž
/ Panipaik
PROJEKTI KIRJELDUS
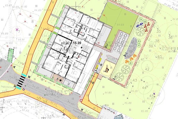
Koduallee paikneb vaiksel kesklinna tänaval, eemal tihedast liiklusest, harmoneerudes Kitseküla ajaloolise miljöö ja elurütmiga. Arhitektuurne lahendus kannab edasi väärikust ja ajas kestvat esteetikat. Koduallee Kitsekülas on nagu väike omaette maailm – aeglasem, rahulikum, aga alati ühenduses kõige olulisega.
Hoone arhitektuuri on loonud tunnustatud Karisma arhitektid OÜ.
Projektis Koduallee on vaid 20 korterit. Kujunda stiilne kesklinna kodu just enda maitse järgi – Ace of Space sisearhitektid on loonud üldaladele stiilse siseviimistluskontseptsiooni ning kodudele isikupäraseid siseviimistluspakette. Kujunda oma uus kodu koos meiega!
ASUKOHT JA ELUKESKKOND
Koduallee elukeskkond on roheline ning rahulik. Asula tänav asub ühes vaiksemas Tallinna osas ning on ümbritsetud rohelise keskkonnaga. Koduallee eristub ka mitmekesise ühistranspordi võrgustikuga, tagades kiiret ühendust Tallinna südalinna, kui ka linna teiste osadega. Nii, igapäevaelus, saab mugavalt kasutada liikumiseks rattast, bussi (lähim peatus 400 m), trammi (lähim peatus 400 m), rongi (lähim peatus 500 m). Rongiga saab mugavalt nii Baltijaama turule kui ka Tallinna suurimatesse ostukeskustesse Ülemiste ja Kristiine.
Lähedal on kõik eluks vajalik:
/ Tallinna Magdaleena Lasteaed 50 m, jalgsi 1 min
/ Tallinna südalinn 2 km
/ Tallinna Humanitaargümnaasium 1 km, jalgsi 10 min
/ Lähim peatus Tallinn-Väike 450 m, jalgsi 5 min
Oluline info on ka piirkonna arendamisel. Kõrval oleva kinnistu menetluses olev detailplaneering sai rohelise tule ning detailplaneeringu kohaselt ehitatakse korterelamud ja äriruumid ning rikkaliku haljastusega multifunktsionaalne park, mis on mõeldud avalikuks kasutamiseks.
PROJEKTI ARHITEKTUURSED EELISED
/ Hubane, vaid 20ne korteriga maja
/ Soe maa-alune parkla
/ Isiklikud ja keskmisest suuremad panipaigad
/ Lamelltellise ja puitlaudisega kaetud fassaad
/ Klaasitud rõdud/terrassid ja lai liugsüsteemil rõduuks
/ Esimesel korrusel avarad ja võimalikult privaatseks loodud terrassid
/ Lifti uksed avanevad mugavalt otse garaaži
/ Korterites kõrged laed 2,85 m
/ Maastikuarhitekti kujundatud sisehoov koos mänguväljaku ja rikkaliku haljastusega
/ Rattahoidjad
EHITUSTEHNILISED EELISED
/ A-energiaklass
/ Korteripõhine sundventilatsioon
/ Mugav vesipõrandaküte
/ Päikesepaneelid
/ Nutikas kodu ja tehnosüsteemide juhtimine
/ Igal parkimiskohal elektriauto juhtmetaristu
/ Elektriauto laadija paigaldamise võimalus
/ Aktiivse jahutussüsteemi väljaehitamise võimalus
/ Korterite planeeringud on detailselt läbimõeldud ja ehituse alguses on võimalik korteri planeeringus ja siseviimistluse materjalide valikul kaasa rääkida
PROJEKTI AJAKAVA
/ 2025a. suvi - hoone projekteerimine ja ehitusloa taotlemine
/ 2026a. jaanuar - ehitusluba väljastatud
/ 2026a. veebruar - ehitustööde algus
/ 2026a. juuli - siseviimistlusmaterjalide valimise tähtaeg
/ 2027a. mai - hoone valmimise tähtaeg
MÜÜGIINFO JA BRONEERIMINE
/ Korteri broneerimiseks allkirjastame notariaalse võlaõiguslepingu sissemaksega 10%. Võimalik ka tasuda kahes osas 5% + 5%;
/ Hoone ja korteri valmimisel allkirjastame asjaõiguslepingu ostuhinna jäägi 90% tasumisega.
ARENDAJA
Sinu uue kodu arendab ja ehitab tunnustatud kinnisvaraarenduse ja ehituse peatöövõtuga tegelev ettevõte HAUSERS. Enamus meie projekte on meie enda projekteeritud ja ehitatud, tähendades, et oleme hoone rajamise juures alates esimesest ideest kuni selle valmimiseni, tagades lõpptulemuse kvaliteedi. Meie prioriteetideks on ehituse kõrge kvaliteet, usaldusväärsed suhted meie partneritega ja klientide rahulolu.
Lisainfo on leitav ka kodulehelt: https://www.koduallee.ee
Võta meiega ühendust ning leiame Sulle sobiva kodu!




