Two spaces for one price in kassisaba!
Apartment ownership, stone house
Kitchen: induction stove, open kitchen, refridgerator, kitchen furniture
Sanitary arrangements: shower, new sewerage system
Heating and ventilation: central heating, heated floors
Additional information: balcony 7.3 m², new electric wiring, lift, parquet, furniture, separate rooms, closed courtyard, high ceilings, box-room
Communications and security: frontdoor locked
Neighbourhood: neighbours around neighbours, surrounding buildings private houses and apartment buildings, in the city location, roads in good condition roads
Adamsoni Boutique House – an exclusive lifestyle in a 9-unit Energy Class A building. We present a unique bundle: a fully furnished home plus a separate studio with its own entrance.
DETAILS:
Apartment No. 3 (54.2 m² + 7.3 m² balcony): A spacious 3-room home catching the south and evening sun.
Furniture Included: Equipped with high-quality kitchen units, bathroom furniture, custom-made curtains, and a large hallway wardrobe.
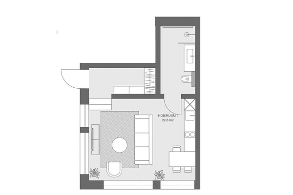
Studio Apartment (33.5 m²): Located on the basement level, featuring large windows and a private entrance. Perfect for a home office, hobby room, or guest accommodation.
Note: The studio space is assigned for the exclusive use of the owner of Apartment No. 3.
PACKAGE PRICING
Total Bundle Price: 437,760 € (includes Apartment No. 3 and the Studio).
Additional (mandatory): Parking space 15,000 € and storage unit 4,300 €.
WHY CHOOSE THIS OFFER?
Energy Class A: Solar panels and PIR insulation ensure low maintenance costs.
Premium Finish: "Grafit" interior package (herringbone oak parquet, black accents) + high-quality custom furniture.
Smart Investment: A studio with a separate entrance offers a rare opportunity to separate work from home or provide total privacy for guests.
Quality Construction: A stone building with concrete floors and triple-glazed windows ensures peace, quiet, and durability.
Location: The historic charm of Kassisaba, just a short walk from the Old Town, Hirve Park, and Telliskivi Creative City.
THE HOUSE IS READY! APARTMENT NO. 3 IS FURNISHED AND AVAILABLE FOR VIEWING.
Contact us:
www.adamsonibutiik.ee
k****@k****************.ee
Tel. +*** **** ****
Developer: KRAUSS Kinnisvara OÜ




