Design your new home the way you'd like to live!
Apartment ownership, panel house
Sanitary arrangements: new sewerage system, separate toilet room and bathroom, sauna, shower
Heating and ventilation: central heating, heated floors, conditioner, fireplace
Additional information: balcony 7.5 m², new electric wiring, box-room, underground garage, high ceilings, roof apartment, packet windows, parquet, lift
Kitchen: open kitchen
Communications and security: frontdoor locked, security system
Neighbourhood: water body sea near, location in the center location, roads in good condition roads
The first construction phase of Nordic style Kalaranna Quarter has been completed, and the second and last phase, during which the next four houses will be completed, has started. Already being the most valued location in Tallinn, Kalaranna Quarter will increase its value even more in time.
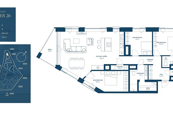
Kalaranna 8/7 apartment 11 has unique views towards Tallinn Bay!
Apartment has large open living room with size 30,9m2. Bedroom has also view towards the sea and morning sun!
* Spacious penthouse apartments with sea and Old Town views
* 1 – 4 room apartments in different sizes and layouts
* Loft-style apartments through two floors with high ceilings
* Balconies and terraces with priceless views
* High-quality interior finishing solutions
* Spacious underground parking floor
* A safe, car-free courtyard area with cafes and various leisure activities
* Old Town, Kultuurikatel and wide selection of restaurants and are nearby
Based on their long-term experience, Kadarik Tüür Architects have created a vision through which unique homes with the aesthetics of Nordic architecture are born. The residential area consisting of 12 residential buildings together with the renovated beach park and promenade is designed for people who appreciate a well-thought-out living environment and value time. The heart of the six-hectare block is a spacious square, where you can enjoy a comprehensive environment together with outdoor cafes and local businesses.
Interior architect Galina Burnakova has drawn inspiration from long walks on distant and nearby beaches when choosing interior finishing materials, bringing both Nordic and Mediterranean feel to the interior finishing. In both interior and exterior solutions, the emphasis is on quality and environmental friendliness.
In addition to the Old Town being visible from the window of your home and the expansive sea silhouette, Kultuurikatel with its exciting events throughout the year is close by, as well as a wide range of excellent restaurants.
Parking place cost is 27 000 – 30 000 euros and storage room prices between 8500-9900 euros.
Please let us know what kind of apartment you are looking for and we can help you to find your home!




