Tule ela oma parimat võimalikku elu hipodroomil!
Apartment ownership, stone house
Kitchen: electric stove, open kitchen
Sanitary arrangements: shower
Heating and ventilation: central heating, heated floors
Additional information: balcony 12.3 m², underground garage, lift, parquet, packet windows, high ceilings, furnishing possibility
Communications and security: steel door, frontdoor locked
Neighbourhood: water body sea near
Elu, mida oled otsinud: ainulaadne, kvaliteetne, looduslähedane.
Kauaoodatud HIPODROOMI Kvartal on lõpuks kerkimas!
Hipodroomil elad nii, et elu mõte pole töö, ja töötad nii, et elu oleks mugav. Meil on mõnusalt ruumi olemiseks. Siin oled metsaga harmoonias ja siit leiad metsikult avastamist. Siin võid olla ühtaegu looduses ja linnas. Parim tee toob Hipodroomi kvartalisse, sest elu meil on parem.
Läbimõeldud haljastuse, mitmete puhkealade, omaenda terrasside ja rõdude ning rohke rohelusega kvartalisse rajab Reterra esimeses etapis 5 kortermaja, mis asuvad Merimetsa tee poolses küljes ja sisekvartalis. Vähene liiklus hoonetebloki ühes küljes ning majadest teisele poole jääv efektse haljastusega autovaba promenaadiala pakuvad vajalikku privaatsust.
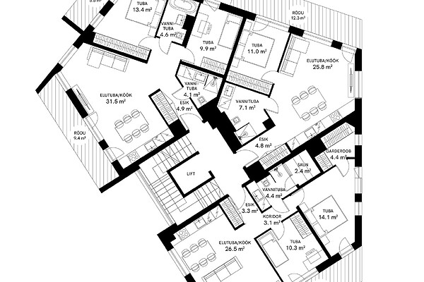
PLANEERINGUD
Hea on planeerida kodu ostmist, teades, et ei pea kaasama tippdisainerit. Koostöös PIN arhitektide ja sisearhitekt Birgit Jaanusega oleme selle töö juba ära teinud ja loonud kodud, mille iga detail on disainitud, kujundamaks sulle mõnusam elukeskkond. Majadesse on tekitatud hästi läbimõeldud ja loogilised ruumilahendused, võimaldades nii eraldi majapidamisruume, walk-in garderoobide lahendustega magamistube, mitme vannitoga, tualettruumiga kui ka saunaga kortereid. Korterite laed on 2,95 meetri kõrgused, luues ruumi palju avarust. Igal korteril on kas terrass, rõdu ja / või privaataed. Maast laeni aknad toovad ruumidesse rohkelt loomulikku valgust. Sisearhitekt on kokku pannud 4 eriilmelist viimistluspaketti, mille vahel ostja saab valida. Varajastel ostjatel on võimalik kaasa rääkida ka ruumiplaneeringus ning teha erilahendusi.
KÜTE JA VENTILATSIOON
Hooned on A-energiaklassiga ja katustele paigaldatakse päikesepaneelid. Korterites on ruumipõhiselt juhitav vesi-põrandaküte ja korteripõhine soojustagastusega sundventilatsioon. Kõikidesse korteritesse saab soovi korral lasta paigaldada ka jahutuse.
ESMAKLASSILINE KESKKOND JA ASUKOHT
Kuna kvartali planeerijad pole oma töös rohelised, vaid väga kogenud tegijad, on nad suutnud luua rohelisusest pakatava elukeskkonna. Sinu uut elupaika ümbritseb kaunis parkmets, Stroomi supelrand on vaid kilomeetri kaugusel ning kogu kvartalit läbib erinevate rohe- ja tegevusaladega pikk promenaaditänav.
Kui su koduost pole enam kaugel, tea, et juba üsna pea elad paigas, kus ka mitte miski muu pole liiga kaugel. Kesklinn ja teised olulised sõlmpunktid eri suundades on vaid veerand tunni kaugusel. Lihtne startida, lihtne taas koju jõuda. Jaluta randa, harrasta lohesurfi, tee sörkjooksu ühel Tallinna parimal kergliiklusteel, võta päikesevanne otse kuumal Stroomi rannaliival või vaata lihtsalt lainetavat Läänemerd. Ja tuju lähebki oluliselt mõnusamale lainele.
PARKIMINE
Kui ümbruskonna rohealad meeldivad kindlasti ka meie neljajalgsetele sõpradele, siis maa-alune parkla sobib nii kahe- kui neljarattalistele. Kogu residentide parkimine on viidud maa-alla, kuhu pääseb majade kõrvale rajatavast Eesti esimesest elamukvartali tunnelist, mis hakkab Merimetsa tänavat ühendama uue, samuti alles rajatava, Hipodroomi tänavaga. Garaažis asuvad ka panipaigad, rataste spetsiaalne hoiuruum ning sealt saab otse liftiga sõita enda kortermaja vajalikule korrusele.
VALMIMINE
Esimesed hooned valmivad 2026. aasta kevadel. Hooned ehitab tunnustatud ehitusfirma Mapri Ehitus.
ARENDAJA
Hipodroomi arendaja on Reterra Estate. 10 aastat tegutsenud arendusettevõte on tänaseks loonud üle 700 uue kodu ning juhib 70 000 m2 ulatuses äripindasid Tallinnas, Tartus ja Riias. Reterra elamuarenduste seast leiab Raemõisa Kodu, City Torni, Raadimõisa Kodu, Raadimõisa Pargimajad, Lumina Kodud ja mitmed teised. Ärikinnisvara portfelli kuulub näiteks Telia ja Pipedrive’i peakontor, Tabasalu Keskus, Tartu Tervisekeskus ja Tiskre Ärimaja.
Tutvu Hipodroomi uusarenduse ning kõigi pakutavate kodudega www.hipodroomi.ee/elu.
Ads for this development
| Rooms | Total area | Floor | Price | |
|---|---|---|---|---|
| 2 rooms | 48.7 m² | 2/5 | ||
| 2 rooms | 47.2 m² | 2/5 | ||
| 2 rooms | 49.8 m² | 1/5 | ||
| 2 rooms | 49.1 m² | 3/5 | ||
| 3 rooms | 71.7 m² | 4/5 | ||
| 3 rooms | 57.3 m² | 1/5 | ||
| 3 rooms | 66 m² | 1/5 | ||
| 3 rooms | 79.3 m² | 4/5 | ||
| 4 rooms | 97.2 m² | 4/5 | ||
| 4 rooms | 117.5 m² | 5/5 | ||
| - | 357.6 m² | 8/12 | ||
| - | 448.5 m² | 5/12 | ||
| - | 244.1 m² | 8/12 | ||
| - | 839 m² | 8/12 | ||
| - | 945.6 m² | 5/12 | ||
| - | 257.3 m² | 2/12 | ||
| - | 1847.2 m² | 3/12 | ||
| - | 224 m² | 5/12 | ||
| - | 467.3 m² | 8/12 | ||




