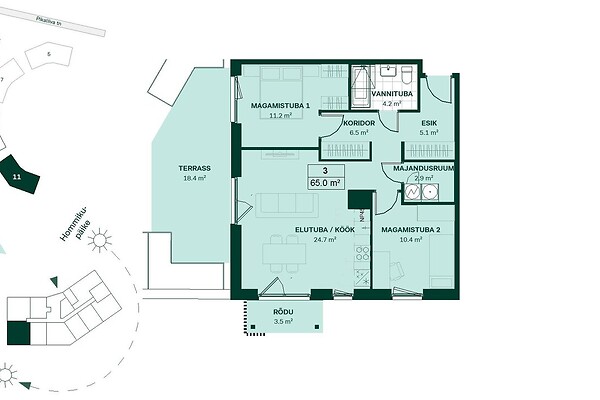
18,4 m² terrass
Korteriomand, kivimaja
Lisainfo: terrass, panipaik
Avar ja funktsionaalne 3-toaline korter suure terrassi ja rõduga.
Uhiuus kodu ühendab kaasaegse arhitektuuri, energiasäästlikkuse ja nutikalt planeeritud ruumikasutuse. A-energiaklass tagab madalad küttekulud ning vesipõrandaküte loob ühtlase ja hubase sisekliima igal aastaajal. Maast laeni aknad lisavad valgusküllasust ja loovad avatud elukeskkonna.
Elutuba ja köök (24,7 m²) moodustavad avatud ja praktilise ruumi, kus modernne köögilahendus ning suured aknad loovad õdusa atmosfääri. Elutoast pääseb nii 3,5 m² rõdule kui ka 18,4 m² terrassile, mis laiendavad eluruumi ja pakuvad võimalust nautida hommikupäikest või hubaseid õhtuid värskes õhus, vaatega rahulikule sisehoovile.
Kaks magamistuba (11,2 m² ja 10,4 m²) on eraldiseisvad ja privaatse paigutusega, sobides ideaalselt nii puhkamiseks, töötamiseks kui ka laste- või külalistetoaks. Suuremas magamitoas saab luua mugava walk-in garderoobi. Majandusruum (2,9 m²) lisab kodusele elule praktilisust, võimaldades kodumasinate ja muude tarvikute mugavat hoiustamist.
Vannituba (4,2 m²) on viimistletud kvaliteetsete materjalidega ja varustatud kaasaegsete sanitaartehniliste lahendustega. Esik (5,1 m²) ja koridor (6,5 m²) on ruumikad ja varustatud mahukate panipaikadega, tagades mugavuse ja funktsionaalsuse.
Maa-aluse parkla suur osa lisab avarust hoovialale, tagades samal ajal elanikele mugava parkimise, kus sinu auto on alati ilmastikuolude eest kaitstud. Uue kodu hinnas sisaldub eraldiseisev panipaik, kus on mugav hoiustada suuremaid hooajaväliseid asju.
Pikaliiva Kaarmaja neljast elamust moodustub kaunis poolkaar, mille keskmeks on hubane hooviala. Õdusas reljeefse maastikuga sisehoovis ootavad elanikke puhkeala ja mänguväljakud igas vanuses lastele. Naabritega koosolemist ja elu nautimist pakub päikesele avatud grilli- ja puhkeala koos piknikulaudade, väligrilli ja pergolaga. Parkimiskohad asuvad nii väliparklas kui ka maa-aluses parklas, mis lisab hoovile ruumi ja avarust. Pikaliiva elamud teevad energiasäästlikuks ja kaasaegseks päikesepaneelid ning nutikodu lahendus, tänu millele on elamule omistatud A-energiaklass.
Korter on sissekolimiseks valmis. Võta ühendust ja tule kohapeale tutvuma!
Tutvu lähemalt: bonava.ee/pikaliiva




