Väga hea asukoht !
Korteriomand, paneelmaja, köögipind 10 m²
Köök: köök 10 m²
Lisainfo: rõdu 2.5 m², parkett, panipaik, pakettaknad, ventilatsioon, lift, rullmaterjalist katus
Küte ja ventilatsioon: konditsioneer
Uus-Hollandi elurajoonis. Sadama asumis. Avara vaate ja rõduga 3 toaline korter
Uus- Holland see on Kesklinna mugavus, kaasaegne arhitektuur, privaatne elukeskkond ja loomulikult promenaadlik avarus. Reidi teed eraldab kenasti haljasala-park. Samas asub mereäärne jalakäijate promenaad, jalgrattateed, pargiribad koos puhkealadega- on kõik mõne minutilise jalutuskäigu kaugusel.
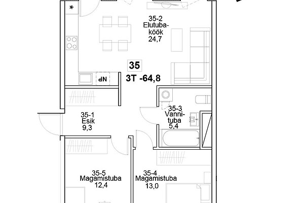
Korteri planeering läbi maja . Avatud köök elutuba vaatega merele. Kaks magamistuba paiknevad hoovi pool.
Põrandal naturaalne puit parkett, esik ja vannituba plaaditud. Aknad on põhjamaade tüüpi, puit-alumiinium raamidel väga hea heli- ja soojuspidavusega. Elutoast pääseb suurepäraese vaatega rõdule. Küte on Linna kaugküte, korterites vesipõrandaküte.
samuti on korteris soojustagastusega sundventilatsioon, mis tagavad mõistlikud küttekulud ka külmadel talvedel.
Korteri juurde kuulub panipaik keldrikorrusel.
Uus-Hollandi elurajooni on projekteerinud Nord Projekt. Esimesed kortermajad valmisid 2019a ja 2020a.
Hoone konstruktsioon :
Keldriseinad on raudbetoonist samuti 1-6 korrustel on monteeritavad raudbetoonelemendid
Siseseinad on monteeritav rb 200mm kandvates seintes (korterite ja üldkasutatavate ruumide vahelised).
Korteri sisesed seinad kipsplaadist, karkass on täidetud helikindluse tõstmiseks klaasvillaga.
Vahelaed on raudbetoon õõnespaneelid. Hoonel on lamekatus, rullmaterjal.
Fassaad on osaliselt raudbetoon – matriits ja osaliselt ehitusplaat. Välisseina osad osaliselt klinkerfassaadisüsteemiga kaetud.
Rõdud ja terrassid on seotud hoone põhikonstruktsiooniga, rõdude piirded metallkonstruktsioonis kaetud ehitusplaadi- ja klaasiga.
Vaid Domus Kinnisvara kliendile kehtivad Luminori kodulaenu parimad tingimused. Kodulaenu taotlusel märgi kampaaniakood DOMUS. Pakkumine kehtib kuni 30.06.2026.




