Jõhvi linna tootmine või laopind või stock-office
Kogupind 750 m², Kinnistu, angaar
Sanruum: dušš, ventilatsioon, tsentraalne vesi
Küte ja ventilatsioon: õhksoojuspump, keskküte
Köök: köök, köögimööbel
Lisainfo: sissepääs tänavalt, elekter
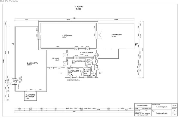
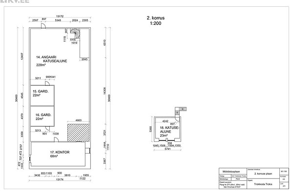
Tegemist on erineva pinnaga, pindalad 753 m2 ja 784 m2. 2 erineva osaga suuremas hoonekomplektsist, kus on erinevad sissepääsud ja kommunikatsioonid. Soojustatutud lao- ja tootmispinnad, hoonetes on ka büroo- ja olmeruumid.
Küttesüsteem baseerub keskküttel, radiaatorite ja puhuritega, lisaks on õhksoojuspumbad.
Hoonetes ATS, valve- ja videovalveseadmed.
Peakaitse on suurusega 3x250 A.
Hoonel tõstevärav mõõtudega 3,5 x 4,5 meetrit. Betoonpõrand, osa pinnast suurendatud kandevõimega. Lae kõrgus 3,3 meetrit.
Logistiliselt hea asukohaga ja mugav ligipääs veokitele.
Hoones on kontori- ja olmeruumide osa, riietusruum (pesemisvõimalusega), kööginurk ja puhkeruum.
Juurdepääs ja parkimine asfaltkattega alal.
Kinnistu on piiratud aiaga ja valve all koos videovalvega.
Kinnistu asub piirkonnas, kus on mitmeid teisi stock-office tüüpi multifunktsionaalseid hooneid, piirneb põhimaanteega nr 33 (Jõhvi-Kose).
3 min jalutuskäigu kaugusel kaubanduskeskus Pargikeskus.
Ehitiste tehnilised andmed on näha lisatud plaanidel.
Koheselt VABA.




