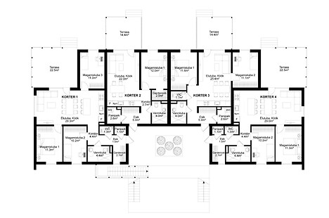
Tartumaa, Tartu, Tartu linn, Ropka, Ropka tee 6
Unikaalne pakkumine, uueväärne korter!
Korrus 1/2, Korteriomand, kivimaja, ehitusaasta 2010, renoveeritud, dušš, uus torustik, ...
Ehitustööd käivad ja korter valmib juuli 2026.a.MAJA: Ainulaadne maja on ehitatud ...