Müüa korter, 5 tuba - Kuldse Kodu 1, Ülejõe, Pärnu linn, Pärnu, Pärnumaa

Kuldse kodu, kuldne pakkumine – 5-toaline aatriumkorter

Korteriomand, kivimaja

Köök: elektripliit, avatud köök, külmik, köögimööbel
Sanruum: vann, dušš, boiler, pesumasin
Küte ja ventilatsioon: ahjuküte, kaugküte, õhksoojuspump, konditsioneer, kamin
Lisainfo: panipaik, kanalisatsioon, pakettaknad, terrass, parkett, tsentraalne vesi, eraldi sissepääs, mööbli võimalus, parkimine tasuta
Side ja turvalisus: trepikoda lukus
Ümbrus: kattega teed

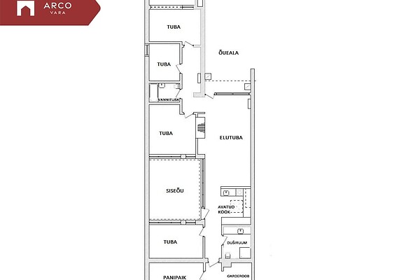
Otsid avarat ja privaatset kodu, kus on piisavalt ruumi kogu perele ning mille juurde kuulub ka oma õueala? Sinu võimalus on saabunud, pakkumisse on tulnud 5-toaline aatriumkorter I korrusel, mis pakub ridaelamu eeliseid korterielu mugavustega!

KORTER
Selles korteris tunneb end mugavalt ka suurem pere, kuna selle hästi läbimõeldud planeeringu koosseisu kuuluvad avatud köök-elutuba, neli eraldi magamistuba, kaks pesuruumi (millest ühes on ka vann), walk-in garderoob, esik ning ruumikas panipaik, kust pääseb ka keldrisse. Ja see pole veel kõik, omapära lisavad korterile kinnine sisehoov ehk aatrium ja isiklik aianurk.

Kõik olulised detailid on hoolikalt läbi mõeldud – ruumid on avarad ja valgusküllased tänu suurtele akendele ja kõrgetele lagedele. Magamistoad on privaatselt eraldatud, nende aknad avanevad rahulikule sisehoovile. Köök on sisustatud kvaliteetse mööbli ja integreeritud tehnikaga. Kogu korteri interjöör on maitsekas ja moodustab ühtse terviku. Sisustuse osas on võimalik pidada läbirääkimisi, kui soov on korterisse kohe sisse kolida.

Lisaks kaunile välimusele on erilist tähelepanu pööratud ka praktilisusele – piisava hoiuruumi tagavad walk-in garderoob, mahukas panipaik ja suur sisseehitatud garderoobikapp koridoris. Korteris on kaks eraldi pesuruumi ning igas ruumis on läbimõeldud valguslahendused ja aknakatted.

MAJA 
Hoone, mis paistab silma oma ajastu ainulaadse ja põneva arhitektuuriga. Maja sissepääsud on turvaliselt lukustatud ning elamu ümbrus on korrastatud ja hooldatud. Parkimine elamu ees, vabalt valitud kohas. Maja taga asub mänguväljak ja rohealad, kus lapsed saavad turvaliselt mängida.

Majas tegutseb aktiivne ühistu, kes on alustamas kogu korterelamu renoveerimist KredExi toetusega. Tööde käigus soojustatakse katus ja fassaad, uuendatakse küttesüsteem, vahetatakse aknad ning korterite välisuksed. Lisaks paigaldatakse päikesepaneelid sooja tarbevee tootmiseks ja rajatakse soojustagastusega ventilatsioonisüsteem. Korterelamul on helge tulevik ees – oodata on kaunimat välimust, madalamid kõrvalkulusid, paremat sisekliimat ning turuväärtuse kasvu.

KÜTE, KOMMUNIKATSIOONID JA KULUD
Korteri peamiseks kütteallikas on tsentraalne kaugküte. Kütet arvestatakse vastavalt tarbimisele, mistõttu ei pea te muretsema liigsete kulude pärast. Lisaks on korteris kaunis salvestav kaminahi ning õhksoojuspumbad, mis on mõeldud pigem suviseks jahutamiseks. Pesuruumis on elektripõrandaküte. Külm vesi ja kanalisatsioon on tsentraalsed, soe vesi tuleb elektriboilerist.

Korteri ülalpidamiskulud sõltuvad tarbimisest ja valitud kütteliigist, mis võimaldab kulusid optimeerida. Detsembris 2025 oli kõrvalkulude arve koos tarbimisega 431,68 €, suvel jääb arve umbes 300 € kanti. Kui soovid täpsemaid arveid näha, anna sellest märku e-posti teel.

PIIRKOND
Korterelamu asub rahulikus ja peresõbralikus piirkonnas, kus on palju rohelust. Vahetus läheduses asub lasteaed Trall ning jalutuskäigu kaugusel Ülejõe ja Rääma Põhikoolid. Igapäeva ostudeks on lähedal mitmed kauplused. Maja ees asub bussipeatus "Kuldne Kodu". Maja kõrval asuv terviserada pakub suurepäraseid võimalusi nii jalutamiseks kui ka sportimiseks.

Vastan meeleldi kõikidele lisaküsimustele. Helistada võib ka töövälisel ajal ja nädalavahetusel. Ootan Sind korteriga tutvuma!

Caspar Lääne
Kutseline maakler
Kutsetunnistus: 194707
Kinnisvaramaakleri reg.nr: KMR 7982

Kuulutuse link

Võta ühendust

Caspar Lääne
Caspar Lääne Kasutaja on autentitud
Arco Vara Kinnisvarabüroo OÜ
EST ENG
Kutseline maakler
Kirja saatmisel nõustud KV.EE kasutustingimuste ja andmekaitsetingimustega
Võta ühendust
Caspar Lääne
Caspar Lääne Kasutaja on autentitud
Arco Vara Kinnisvarabüroo OÜ
146 000 € 1 174 €/m²
Müüa korter
Müüa korter www.kv.ee/3734916
Tube 5
Üldpind 124.4 m²
Korrus/Korruseid 1/5
Ehitusaasta 1975
Seisukord Heas korras
Omandivorm Korteriomand
Katastrinumber 62507:061:8980
Energiamärgis Puudub
Andmed kinnistusraamatust
Teata ebakorrektsest kuulutusest

SAA ÜLEVAADE KUULUTUSE KÄEKÄIGUST!

Kuulutuse siseinfo 14.99€ / 24
Kuulutuse ajalugu ja statistika
Avaldamiskuupäev
Vaatamiste arv
Ühenduse võtmised
Telefoninumbri vaatamised
Lemmikuks lisamised

KORTERI HINNAKALKULAATOR

Sarnased kuulutused

Näidislaenumakse

Laenutähtaeg: 20 a
Sissemakse: 30%
Intress alates: 3,5%