1 Harjumaa, Tallinn, Kesklinn, Alevi tn 3-17
UHKETE LINNAVAADETEGA KODU! EELREGISTREERU TUTVUMA!
UHKETE LINNAVAADETEGA KODU! EELREGISTREERU TUTVUMA!
Eraldi sissepääs, korter läbi mitme korruse!
AVAR 4-TOALINE KORTER KESKLINNA UUES TORNMAJAS!
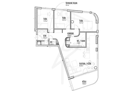
Rõduga perekodu kesklinnas, Uue Maailma roheluses
| Laenutähtaeg: | 20 a |
|---|---|
| Sissemakse: | 30% |
| Intress alates: | 3,5% |