Harjumaa, Tallinn, Põhja-Tallinn, Hipodroomi, Merimetsa tee 8/1-1
Kauaoodatud HIPODROOMI Kvartal lõpuks kerkimas!
Kauaoodatud HIPODROOMI Kvartal lõpuks kerkimas!
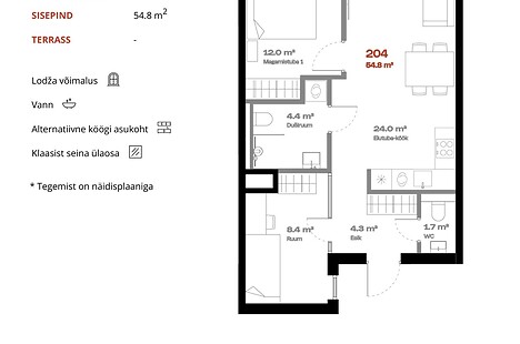
Avar kodu päikesepoolse rõduga, kingituseks köök
PARKIMISKOHT! PANIPAIK! KOHE VABA - VÕTMED NOTARIS!
Vabrik on ehituses, 1 etapp valmib 2027!
| Laenutähtaeg: | 20 a |
|---|---|
| Sissemakse: | 30% |
| Intress alates: | 3,5% |