Tartumaa, Tartu, Tartu linn, Ropka tööstusrajoon, Lõõtsa tn 2
VIIMANE VABA LAO-/TOOTMISPIND TARTUS – LÕÕTSA 2
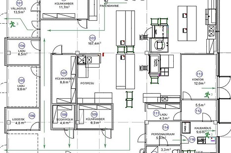
354 m²|Korruseid 1
2 p tagasi
VIIMANE VABA LAO-/TOOTMISPIND TARTUS – LÕÕTSA 2
Sinu kontor Tartu IT meccas!
Äripind Tartu südalinnas!
Üürile anda kütteta ladu Vitamiini ärikvartalis!
| Laenutähtaeg: | 20 a |
|---|---|
| Sissemakse: | 30% |
| Intress alates: | 3,5% |