Harjumaa, Tallinn, Põhja-Tallinn, Kalamaja, Krulli 10-30 (Broneeritud)
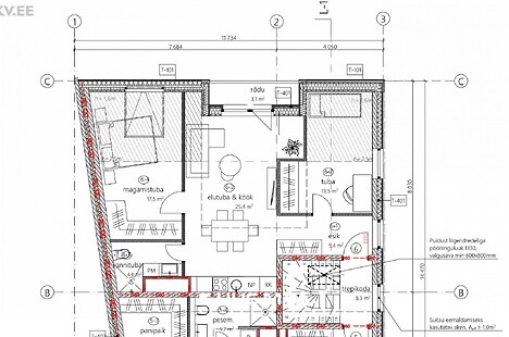
Volta SKAI - imeline kodu kahe rõdu ning vanalinna vaatega!
Volta SKAI - imeline kodu kahe rõdu ning vanalinna vaatega!
Kliendipäev 16.05 kell 11-16
Kliendipäev 16.05 kell 11-16!
Väga hea asukoht! Panipaik ja parkimiskoht!
| Laenutähtaeg: | 20 a |
|---|---|
| Sissemakse: | 30% |
| Intress alates: | 3,5% |