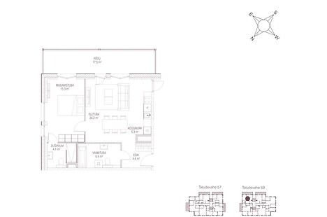
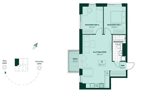
Harjumaa, Tallinn, Haabersti, Pikaliiva, Pikaliiva tn 5-36
A-energiaklass
A-energiaklass
Kliendipäev 07.05 kl 17.00-19.00 Tagala 9-12 näidiskorteris !
Uue etapi majade müük on alanud! Köök hinnas!
Avarad kodud roheluses
| Laenutähtaeg: | 20 a |
|---|---|
| Sissemakse: | 30% |
| Intress alates: | 3,5% |