Suure õuealaga majas perekodu keset männi metsa!
Korteriomand
Köök: elektripliit, külmik, köögimööbel
Sanruum: boiler, dušš, wc ja vannituba eraldi, uus torustik, pesumasin
Küte ja ventilatsioon: õhksoojuspump, tahke kütus, ahjuküte, kombineeritud küte
Lisainfo: parkimine tasuta, pakettaknad, mööbel, mööbli võimalus, kinnine hoov, uus elektrijuhtmestik, panipaik
Side ja turvalisus: trepikoda lukus
Ümbrus: äärelinnas, teed heas seisukorras, järv lähedal
Müügis 3-toaline korter männimetsaga ümbritsetud privaatses kohas!
ASUKOHT
Männimetsa tee 1 korterelamu asub täpselt Nõmme linnaosa piiril, Tallinna kesklinna vaid 15 minuti autosõidu kaugusel.
Privaatne eramajade kõrghaljastatud piirkond, männimets ümberringi.
Veidi eemal on uued arendused, enamuses eramajad.
Rattasõidu kaugusel olemas järv, kus saab suvel ujumas käia.
KORTERMAJA
Välisfasaad on aastal 2005 soojustatud ja viimistletud Marmoroc plaadiga.,
Veevarustus majas on oma puurkaevust, vesi väga hea kvaliteediga, paigaldatud filtrite süsteem, veetarbimist arvestatakse vastavalt korteri elanike arvule. Kommunaalarved on soodsad.
Maja ja hoov on aiaga piiratud. Trepikoda käib lukus.
KORTER
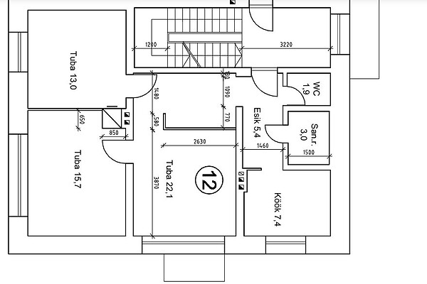
Avara planeeringuga korter asub maja teisel korrusel.
Korterit köetakse nii ahjuga kui õhksoojuspumbaga- küttekulusid saab ise reguleerida.
Elutoast pääseb eraldiseisvatesse magamistubadesse, esikus otse kööki, vasakule jäävad eraldi wc ja vannituba duššikabiiniga.
Hoovi on ehitatud panipaigad, korteri juurde kuulub panipaik puude houistamiseks suurusega 12 m2, lukustatav, lisaks veel on olemas hoiupaik lahuspind maja 1 korrusel 7.7 m2, mis samuti kuulub korteri juurde. ( Kokku: 71m2+ 12m2 +7,7 m2 kasuliku pinda!)
Väga mõnus paljude lisandväärtustega kodu männimetsa keskel!
Ideaalne elukoht lastega perele!
Helista julgelt ja lähme vaatama!
Minu poolt tasuta konsultatsioon, igakülgne abi krediidi saamisel, hindamisakt, ettevalmistus tehinguks, tehingujärgne teenindus!




