Müüa maatükk, tootmismaa - Loo tee 10, Loo alevik, Jõelähtme vald, Harjumaa

Müüa logistiliselt hea asukoha ja detailplaneeringuga 10 tootmis

Krunt 63726 m²

Müüa logistiliselt hea asukoha ja detailplaneeringuga 10 tootmismaa kinnistute hoonestusõigus,
aadressiga Loo tee 10 „VGP Nehatu äripark“ vastas.
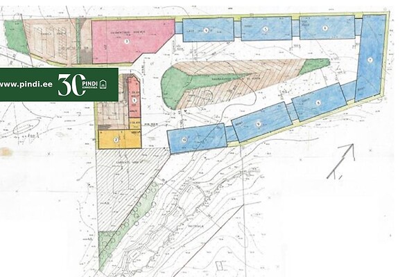
Ehitusalune pind
1. 500m2
2. 1000m2
3. 3200m2
4.
5. 3000m2
6. 1500m2
7. 3000m2
8. 1500m2
9.
10. 3000m2

Kokku arendusel ehitusalune pind 16700m2.

Infrastruktuur:
Kommunikatsioonid ja taristu on välja ehitamata.
Asukoht ja juurdepääs:
Loo tee 10 kinnistu on logistiliselt suurepärase asukohaga. Kinnistutele on tagatud hea juurdepääs Peterburi teelt ja Lagedi liiklussõlme kaudu Tallinna ringteele ja Muuga sadam annavad paindlikud võimalused kauba ja toorme transportimiseks soovitud sihtkohta.
See on ilmselt parim ühendus Tallinna . kuldses ringis.
Arenduspiirkonnas on hea ühistranspordiühendus. Lähedal on Loo asula ja väljakujunenud tööstuspark ning elukeskkond.
Kinnistule on väljastatud kõik kehtivad tehnilised tingimused ( kütte, vesi-kanalisatsioon ja side). Lisaks on väljastatud projekteerimistingimuste eelnõu Jõelähtme valla poolt.
Kinnistule on olemas kehtiv eksperthinnang 1 5 0 0 0 0 0
Lisaküsimuste tekkimisel helistage või saatke e-kiri.

Meeleldi vastan lisaküsimustele ja korraldan visiidi objektile.


-------------------------------------------------------------------------------------------------------------------------------------------------------

PANGA SOODUSTUSED Teeme koostööd kõikide suuremate pankadega! Meie kliendina teenindatakse Sind eelisjärjekorras ning kodulaenu lepingutasule kehtivad soodustused.

VAHENDAMINE Pindi Kinnisvara on pakkunud esindusteenust kinnisvaraturul alates 1995. aastast. Suurima Eesti kinnisvarabüroona oleme esindatud 18 linnas.

OSTUESINDUS Otsid endale kinnisvara? Muudame Sinu otsinguprotsessi sujuvaks ning meeldivaks kogemuseks. Meil on suur kliendibaas ja südikad maaklerid.

HINDAMINE Meie 30 kutselise hindaja eksperthinnanguid aktsepteerivad kõik finantsasutused! Hindame nii elukondlikku kui ärikinnisvara.

HALDAMINE Pakume kinnisvara haldamisel täislahendust: raamatupidamist, tehnosüsteemide hooldust, heakorratöid kinnistul ja hoones, ehituse- ja renoveerimistööde korraldamist, energia-, vee ja kommunikatsiooniteenuste vahendamist ja eripuhastusteenuseid.

JURIIDILINE NÕUSTAMINE Pindi Kinnisvara tütarettevõtte Realia Õigusbüroo spetsialistid on Sulle abiks kõigis kinnisvara puudutavates juriidilistes küsimustes.

Täpsemalt loe ja võta ühendust: https://www.pindi.ee/ või konsulteeri oma maakleriga.

Kuulutuse link

Võta ühendust

Kirja saatmisel nõustud KV.EE kasutustingimuste ja andmekaitsetingimustega
Pindi Kinnisvara
Pindi Kinnisvara
Vaata firma profiili
Võta ühendust
1 195 000 € 18.8 €/m²
Müüa maatükk
Müüa maatükk www.kv.ee/3594115
Krundi pind 63726 m²
Omandivorm Kinnistu
Katastrinumber 24504:002:0070
Registriosa number 74902
Andmed kinnistusraamatust
Teata ebakorrektsest kuulutusest

SAA ÜLEVAADE KUULUTUSE KÄEKÄIGUST!

Kuulutuse siseinfo 14.99€ / 24
Kuulutuse ajalugu ja statistika
Avaldamiskuupäev
Vaatamiste arv
Ühenduse võtmised
Telefoninumbri vaatamised
Lemmikuks lisamised
Sarnased kuulutused

Näidislaenumakse

Laenutähtaeg: 20 a
Sissemakse: 30%
Intress alates: 3,5%