Müüa Tartu linnast 3km kaugusel uus elamu
Kinnistu, puitmaja, kogupind 145.1 m²
Sanruum: dušš, wc ja vannituba eraldi, saun, kanalisatsioon, tsentraalne vesi
Küte ja ventilatsioon: põrandaküte, maaküte
Side ja turvalisus: Internet
Lisainfo: terrass, panipaik, elekter, pakettaknad, parkett, puusein, kivikatus
Müüa elamu kiiresti arenevas linnalähedases elukeskkonnas. Uus Väljaotsa elurajoon asub Muri külas Luunja vallas, Tartu linna piirist 3 km kaugusel. Kesklinna sõidab autoga 10 minutit.
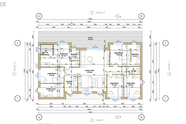
VÄLJAOTSA TEE 22, Muri küla, Luunja vald, Tartumaa
Maja toon must, helebeež.
Eramus paikneb avar elutuba/köök, tuulekoda, saun, wc, dušširuum, puhkeruum, koduhoid, vannituba, 4 magamistuba. Maja ees on sõiduautodele kaks parkimiskohta.
MAJA
Vundamendiks on planeeritud plaatvundament, EPS200 soojustus 250mm, betoonplaat 130mm. Välised kandeseinad rajatakse puitkarkassile, mis soojustatakse kivivillaga. Sisemised mittekandvad seinad on planeeritud kipsplaatseintena, metallkarkass vahel kivivill ning seejärel kipsplaat.
Katuse kandjaks ja vahelae talastikuks kasutatakse puitferme. Vahelagi soojustatakse 600mm puistevillaga.
KÜTE JA KOMMUNIKATSIOONID
Terves elamus on vesipõrandaküte, mille kütmiseks on paigaldatud ökonoomne maasoojuspump. Küte on tubade kaupa eraldi reguleeritav. Ventilatsiooniks energiasäästlik soojustagastusega sundventilatsioon.
Majas on konditsioneer.
HOOV JA PARKIMINE
Hoov haljastatakse muruga. Parkida saab kahel kohal maja ees. Kõrghaljastust kinnistule ei rajata. Müügihinnas ei sisaldu piirdeaeda.
ASUKOHT/TRANSPORT
Asukoht on rahulik ning privaatne. Maja ette on rajatakse sõidu- ja kergliiklusteed, mis on valgustatud ja asfalteeritud. 3 kilomeetri kaugusele (linnapiirile) jääb uus Luunja valla lasteaed.
Elamu valmib august 2026, võimalus sisekujunduse osas kaasa rääkida olenevalt ehitusetapist.
NB! Kuulutuses lisatud 3D pildid on illustratiivsed ja olemas olev olukord võib mõnel määral muutuda.
Helista ja küsi lisa!




