Müüa korter, 3 tuba - Jõe tn 4c, Kesklinn, Tallinn, Harjumaa

2 Airbnb korterit Tallinna kesklinnas – roi 10%

Korteriomand, kivimaja

Köök: elektripliit, avatud köök, külmik, köögimööbel
Sanruum: uus torustik, dušš, pesumasin
Küte ja ventilatsioon: keskküte
Side ja turvalisus: Internet, telefon, kaabelTV, turvauks, trepikoda lukus, naabrivalve, videovalve
Lisainfo: seinakapp, lift, mööbel, mööbli võimalus, TV, keldrikorrus
Ümbrus: Balti meri meri 1.6 km, teed heas seisukorras, asub keskuses, ümbruses eramud ja korterelamud, naabrid kaugel

Müüa äripind, mis koosneb kahest eraldi korterist ja asub Tallinna südames – elavas ning hästi ühendatud piirkonnas. Aadress on jalutuskäigu kaugusel linna finantskeskusest, suurematest ostukeskustest ja kultuuriväärsustest. Lähedus vanalinnale võimaldab nautida ajaloolist miljööd ning piirkonna hea ühistranspordiühendus teeb teiste linnaosade külastamise lihtsaks. Samuti on lähedal sadam ja rannapiirkond, pakkudes kauneid vaateid ja mitmekesiseid vaba aja veetmise võimalusi.

Ajalooline ROI 10% – saavutatud kahe korteri lühiajalise üürimisega Airbnb kaudu.
Kõik kommunaalkulud – küte, vesi ja elekter ühel arvel.
Ostuhinnale ei lisandu käibemaksu.
pagaldatud on YALE DOORMAN NUTILUKK
https://www.yalehome.com/ee/et/smart-home/smart-locks/yale-doorman

Kas otsite oma unistuste kodu või ideaalset investeerimisobjekti? See ainulaadne pakkumine ühendab suurepärase asukoha ja kaasaegsed mugavused. Kui olete valmis ostma või soovite rohkem teavet, on meie kogenud kinnisvaramaakler alati valmis aitama.

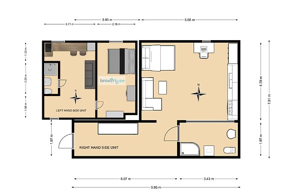
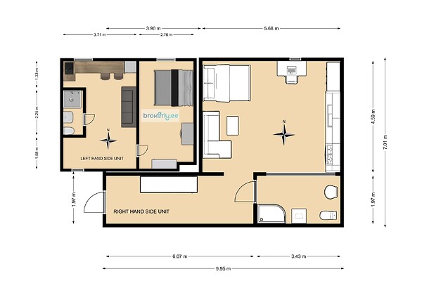
Kuulutuses saadaval VIDEO, PÕRANDAPLAAN ja KOMMUNAALARVED.

Ära lase sellel võimalusel käest libiseda – võta meiega ühendust juba täna, et leppida kokku kohtumine või saada rohkem infot!

Vaata kuulutust Airbnb-s JA Booking.com-is
https://www.airbnb.com/rooms/1213538729747154961
https://www.airbnb.com/rooms/816231154876050785
https://www.booking.com/Share-c7UnpJB
https://www.booking.com/Share-5vTl1I

Kuulutuse link

Võta ühendust

Kirja saatmisel nõustud KV.EE kasutustingimuste ja andmekaitsetingimustega
Brokerly OÜ
Brokerly OÜ
Vaata firma profiili
Võta ühendust
139 000 € 1 712 €/m²
Müüa korter
Müüa korter www.kv.ee/3687684
Tube 3
Magamistube 2
Üldpind 81.2 m²
Korrus/Korruseid -1/5
Ehitusaasta 1999
Seisukord Renoveeritud
Omandivorm Korteriomand
Katastrinumber 78401:114:1600
Energiamärgis Puudub
Kulud suvel/talvel 180 € / 454 €
Andmed kinnistusraamatust
Teata ebakorrektsest kuulutusest

SAA ÜLEVAADE KUULUTUSE KÄEKÄIGUST!

Kuulutuse siseinfo 14.99€ / 24
Kuulutuse ajalugu ja statistika
Avaldamiskuupäev
Vaatamiste arv
Ühenduse võtmised
Telefoninumbri vaatamised
Lemmikuks lisamised

KORTERI HINNAKALKULAATOR

Sarnased kuulutused

Näidislaenumakse

Laenutähtaeg: 20 a
Sissemakse: 30%
Intress alates: 3,5%