Müüa maja, 3 magamistuba - Vasara 12, Ropka, Tartu linn, Tartu, Tartumaa

Hea asukohaga eramaja!

Kinnistu, palkmaja, elamispind 122.5 m², kogupind 151.9 m²

Köök: elektripliit, külmik, köögimööbel
Sanruum: dušš, wc ja vannituba eraldi, boiler, saun, vann, tsentraalne vesi, kanalisatsioon
Küte ja ventilatsioon: õhksoojuspump, ahjuküte, elektriküte, kamin, konditsioneer
Side ja turvalisus: Internet, aiaga ümbritsetud
Lisainfo: parkimine tasuta, pakettaknad, tööstusvool, garderoob, elekter, keldrikorrus, panipaik, kõrvalhoone, ühistransport, kivikatus

Kui sa otsid oma perele rahulikus piirkonnas ja roheluses asuvat kodu, siis meil on tulnud müüki kahekorruseline elumaja aadressil Vasara tn. 12!

MAJA
151,9 m2 üldpinnaga ristpalkmaja 1. korrusel asub garderoobikohaga esik. Esimesel korrusel on avatud köögiga elutuba ja kaks magamistuba. Maja ette, taha ja küljele avanevad aknad lisavad valgust ja avarust. Esikust pääseb samuti keldri- ja ka teisele korrusele. Trepihallis asub ka eraldiseisev WC.
Teisele korrusele jääb tervelt 50,8 m2 suurune tuba, mida köetakse kas kaminaga või
elektriradiaatoritega. Samuti on olemas garderoob ja vannituba. Teise korruse muudab eriti valgusküllaseks aknad, mis avanevad igasse ilmakaarde.
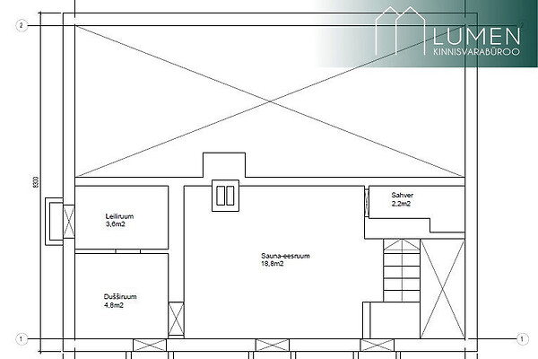
Keldrikorrusel asub 18,8 m2 suurune eesruum, millele lisandub sahver, duširuum ning elektrikerisega leiliruum.

KOMMUNIKATSIOONID
Maja saab kütta kas elektriradiaatoritega, soojust salvestava ahjuga ja õhksoojuspumbaga. WC-s, vannitoas ja keldrikorrusel on elektriline põrandaküte. Teisel korrusel on kütmiseks kamin ja elektriradiaatorid. Olemas on tsentraalne vee- ja kanalisatsiooniühendus. Elektriühenduse võimsuseks on 3x25 amprit. Akendeks on kolmekordsed Lasita puitpaketid. Olemas on ka G4S valvesüsteem.

KINNISTU
640 m2 suurusel kinnistul asub lisaks elumajale ka kuur, mängumaja ning varjualune, kus mõnusasti aega veeta. Hooviesine ala on kaetud tänavakiviga. Suures aias kasvavad mitmed õunapuud ja kirsipuu. Kinnistu on piiratud aiaga.

ASUKOHT
Vasara tn. 12 elumaja asub rahulikus vaikses Vasara tänava tupiktänavas, mida ilmestab kaskedega rohealaga. Lähimateks toidupoodideks on Aardla Rimi, Selver ja Coop Konsum. Piirkonna koolid on Tartu Forseliuse Kool ja Variku Kool. Bussipeatus asub mõneminutilise jalutuskäigu kaugusel.

Huvi korral võta minuga kindlasti ühendust!

Kuulutuse link

Võta ühendust

Kirja saatmisel nõustud KV.EE kasutustingimuste ja andmekaitsetingimustega
Lumen Kinnisvarabüroo OÜ
Lumen Kinnisvarabüroo OÜ
Vaata firma profiili
Võta ühendust
299 000 € 1 968 €/m²
Müüa maja
Müüa maja www.kv.ee/3788458
Tube 4
Magamistube 3
Üldpind 151.9 m²
Korruseid 2
Seisukord Heas korras
Valmidus Valmis
Omandivorm Kinnistu
Krundi pind 640 m²
Energiamärgis Puudub
Andmed kinnistusraamatust
Teata ebakorrektsest kuulutusest

SAA ÜLEVAADE KUULUTUSE KÄEKÄIGUST!

Kuulutuse siseinfo 14.99€ / 24
Kuulutuse ajalugu ja statistika
Avaldamiskuupäev
Vaatamiste arv
Ühenduse võtmised
Telefoninumbri vaatamised
Lemmikuks lisamised
Sarnased kuulutused

Näidislaenumakse

Laenutähtaeg: 20 a
Sissemakse: 30%
Intress alates: 3,5%