Kinnistu, kivimaja, kogupind 141.8 m²
Sanruum: kanalisatsioon, tsentraalne vesi
Lisainfo: elekter, tööstusvool, mööbli võimalus
Küte ja ventilatsioon: maaküte
Side ja turvalisus: aiaga ümbritsetud
Ümbrus: kattega teed
Kodu, millesse on oht kiinduda juba esimesel kohtumisel.
Pakutav vara paikneb Valgetalli elamurajoonis Valgeranna naabruses, kus Luhse & Tuhal arhitektuuribüroo poolt loodud hoonestus on ühetaoline ja moodustab visuaalselt luksusliku terviku. Veel mõned krundid ootavad ehitamist, kuid senini püstitatud kodud on kõik oma pered juba leidnud.
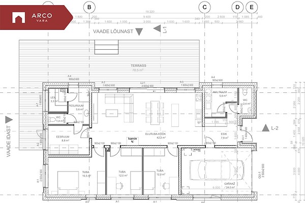
Kinnistu asetseb aktiivsema liiklusega teealast eemal ning üle kodutänava paikneb suur ja aiaga piiratud laste mänguväljak, kergliiklusteed viivad Pärnu linnani. Kaunis kodu püüab pilku juba tänavalt, õuealale liikudes loob meeleolu hooldatud haljastus, tohutu terrass osalise päikesevarjestusega, lisaks abihoone terrassiga, kuhu kutsub mõnulema kümblustünn. Üksikelamu on projekteeritud selliselt, et päikesevalgus oleks hoovis ning terrassil terve päeva ja kolm magamistuba asetseksid põhjapoolsel suunal. Üksikelamus on nagu ikka ühes heas kodus garaaž, lisaks eraldi majapidamisruum, loomulikult saun eesruumiga, kaks tualetti, pesuruum ja kodu südameks päikseline elutuba-köök. Ning kui päikest ei ole, siis saab luua õdusaid hetki eheda kaminatulega. Peamise kodusooja annab maasoojuspump, ventilatsiooni liik - soojustagastusega. Müügihinnas sisaldub kohtkindelmööbel ja sanitaartehnika, teiste mööbliesemete osas räägime läbi.
Kaugused: Pärnu südalinn vaid 7 km, supelrand veidi alla 3 km, supermarket pisut enam kui 3 km, bussipeatus kõigest 500 m.
Seda õiget tunnet ei saa paraku kuulutusega edastada, seega hea koduotsija, kui see piirkond võiks olla Sinu uueks aadressiks, siis kontakteeru ning vaatame pakkumise kohapeal üle.




