KLIENDIPÄEV 07.05 KELL 17.00-19.00
595 000 - 654 000€
RIDAELAMUBOKSID TALLINNA SÜDAMES
SAADAVAL AINULT 3 RIDAELAMUBOKSI / KODUD VALMIS
KASSISABA RIDAELAMUD - asub linna kõige hubasemas, vaiksemas ja kenamas Tallinna piirkonnas - Kassisabas. Arendus koosneb kahest kolme korteriga hoonest. 3-korruselistes TOWNHOUSE stiilis elamuühikutel on igal ühel oma sissepääs, terrass ja isiklik väike hoov.
Fassaad ja aknad mänglevad miljööala rütmidega. Hoone flirdib piirkonna arhitektuursete võtete ja detailidega. Omapärase planeeringu ja lahendusega arhitektuur ühelt poolt sulandub piirkonda, teiselt on tüpoloogiliselt selgelt eristuv kogu piirkonna hoonestusele.
Tänavaäärne maja on projekteeritud süsimusta ja hoovi maja lumivalgena - arhitektuursed elemendid hoonete vahel on kombineeritud musta ja valgega.
Iga elamuühik on unikaalse puidumustriga. Viimistlemiseks kasutatakse kvaliteetsed, erineva kalde puitvoodrit.
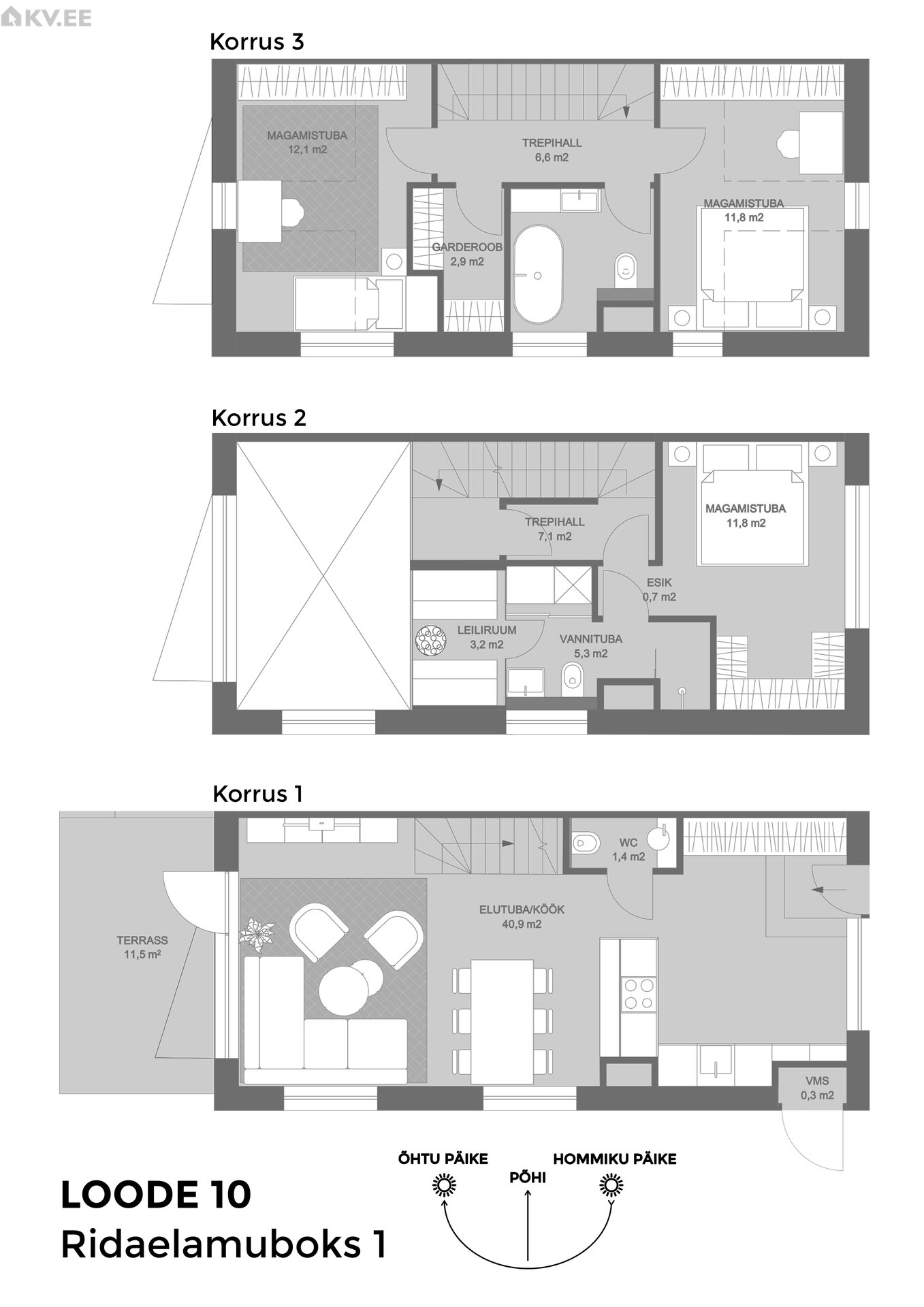
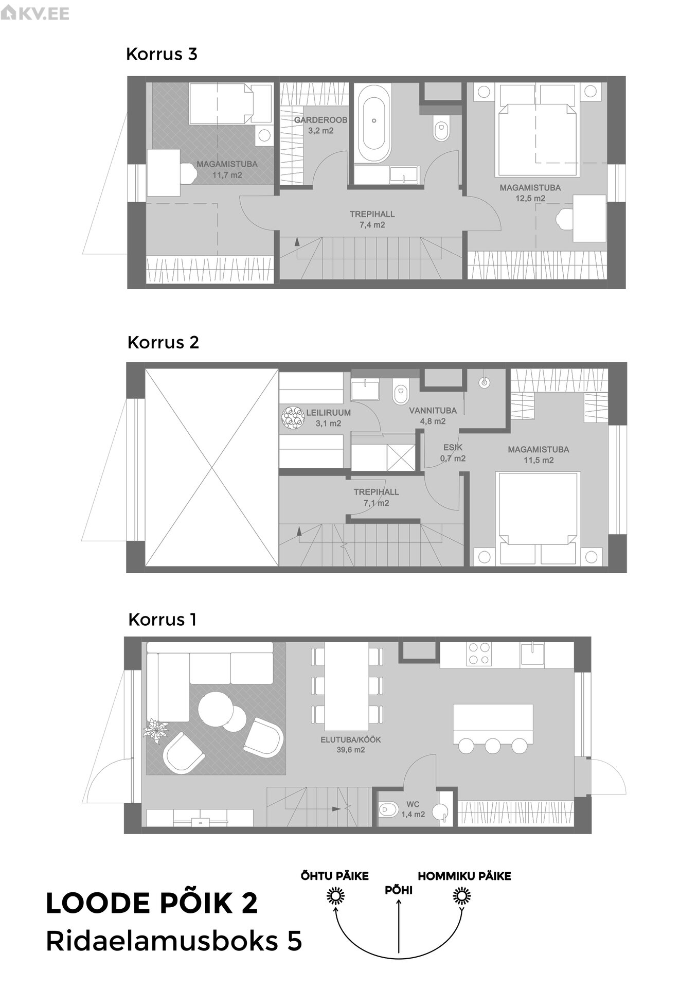
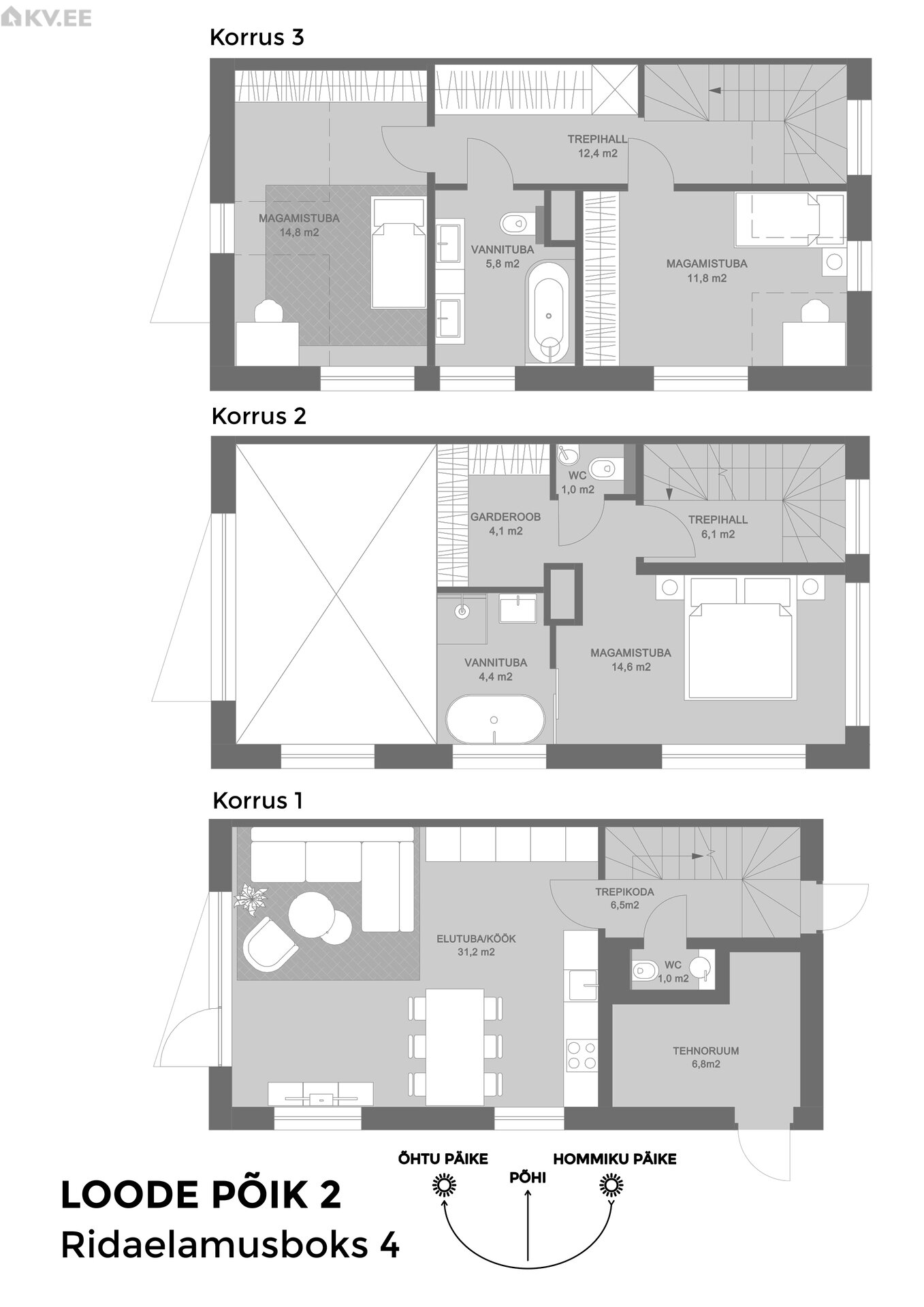
Esimese korrusel asub läbi maja projekteeritud elutuba, kus köök on hommiku päikese ja elutuba sisehoovi - õhtusele päikesele avatud. Elutuba on osaliselt läbi kahe korruse avatud ja 4,7-5,5 meetriste akendega. Teisel korrusel asub mugav ja hubane magamistuba koos oma vannitoa ja garderoobiga. Teise korruse klaasseinaga saunast on võimalik piiluda elutuppa ja sisehoovi. Kolmandal korrusel asub eraldi duširuum, garderoob ja kaks tuba, mida saab kasutada lastetoa-, kabineti-, magamis- või külalistoana.
Igal ridaelamul on projekteeritud üks parkimiskoht, kus on võimalik paigaldada elektriauto laadimisjaam. Majade vahele luuakse puhkeala ja privaatne laste mänguväljak.
KASSISABA RIDAELAMUD - suurepärane elukoht peredele ja neile, kes unistavad unikaalsest kodust, isikliku sissepääsu, terrassi ja hoovialaga kõige hubasemas Tallinna miljööalas.
SEITSE PÕHJUST, MIKS VALIDA KASSISABA RIDAELAMUD
1. Asub kesklinnas ning kõik eluks vajalik on kiviviske kaugusel
2. Kaasaegne ja unikaalne arhitektuur
3. Isiklik sissepääs, terrass ja hooviala
4. Läbimõeldud planeering ja kaasaegne siseviimistlus
5. Osaliselt läbi kahe korruse avatud ruum ja suured aknad
6. Mugavad põrandakütte ja ventilatsioon süsteemid
7. Energiaklass A
ASUKOHA TUTVUSTUS
KASSISABA RIDAELAMUD asuvad Kassisaba piirkonnas. Kassisaba on vaikne, rahulik ja omanäoline miljööala, kontrastse arhitektuuriga puitasum. Jalutuskäigu kaugusel asuvad Toompea, Vabaduse väljak, Telliskivi Loomelinnak, Meriton spa, Kristiine Keskus ja linna peamised pargid ja vaatamisväärsused:
* Toompea Loss
* Tallinna rahvusraamatukogu
* Falgi Park ja mänguväljak
* Hirvepark
* Snelli Park
MAJA KONSTRUKTSIOON
Korterelamu on lintvundamendil kivimaja. Välisseinad on laotud plokkidest laiusega 190 mm, fassaadi viimistlemiseks kasutatakse stiilset, erineva kaldega puitvoodri.
Korteritevahelised seinad on samuti laotud plokkidest laiusega 240 mm, mis on sisse valatud betooniga ja seinte parema heliisolatsiooni tagamiseks mõlemalt poolt krohvitud. Tubade vahelised seinad on ehitatud tugevdatud kipsplaatidest ja metallkarkassist, mis on täidetud heliisolatsiooni villaga.
KÜTE
Korterites on põrandaküte. Kõikide tubade temperatuuri saab seadistada eraldi andurite abil. Maja köetakse õhk-vesi küttesüsteemiga.
VENTILATSIOON
Majas on õige mikrokliima ja igasse korterisse on tagatud värske sooja õhu juurdevool tänu sissepuhke- ja väljatõmbeseadmele.
ENERGIATÕHUSUSE KLASS A
Majal on energiatõhususe klass A. Kasutatud on uue põlvkonna PIR-soojustit, mille soojusülekandetegur on 0,025 W/mK. Katusele paigaldatakse päikesepaneelid. Õhk-vesi-tüüpi soojuspump tagab korterites säästliku soojusenergia. Samuti paigaldatakse puitalumiiniumist 3-kordsed klaaspaketist valmistatud aknad. Akendel kasutatakse päikesekaitseklaase, et vältida ruumide ülekuumenemist.
Lisa informatsioon:
e-mail: [email protected]
Tel. +372 56855814
KRAUSS kinnisvara OÜ
http://www.krausskinnisvara.ee