Müüa maatükk, tootmismaa - Keskplats 2, Imavere, Järva vald, Järvamaa

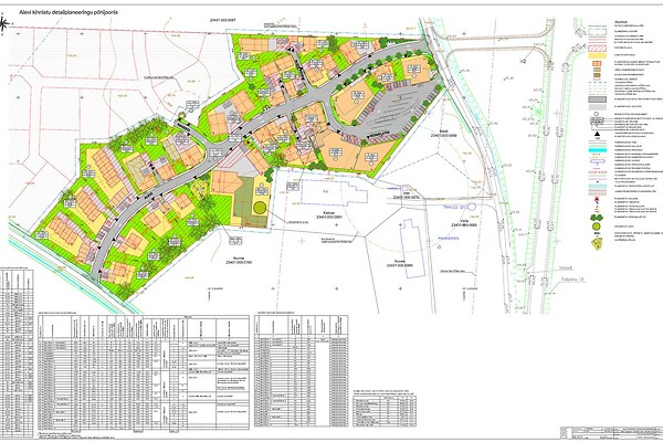
Krunt 70

Kehtiv detailplaneering.
Asub Imavere keskuses. Läheduses asuvad poed, kool, lasteaed, Tikupoiss (taluturg ja toitlustus), valla teeninduspunkt, tanklad, Navesti jõgi, Eesti Piimandusmuuseum, kõrts.
Imaveres on palju töökohti tänu seal asuvatele suurtele tootmisettevõtetele.
Lubatud ehitada tehnorajatis.
Hoone lubatud suurim kõrgus 1.5m.
Ehitusalune pind 70m2, täisehituse protsent 100%.
Lubatud katusekalle 45.
Välisseinte materjal hele krohv. Katusel punane või pruun katusekivi.
Hind ei sisalda teede ja tehnovõrkude väljaehitamist ega liitumist tehnovõrkudega.

Kuulutuse link

Võta ühendust

Kirja saatmisel nõustud KV.EE kasutustingimuste ja andmekaitsetingimustega
AleviKinnisvara OÜ
AleviKinnisvara OÜ
Vaata firma profiili
Võta ühendust
1 200 € 17.1 €/m²
Müüa maatükk
Müüa maatükk www.kv.ee/3554689
Krundi pind 70 m²
Katastrinumber 23401:003:0126
Registriosa number 2793736
Andmed kinnistusraamatust
Teata ebakorrektsest kuulutusest

SAA ÜLEVAADE KUULUTUSE KÄEKÄIGUST!

Kuulutuse siseinfo 14.99€ / 24
Kuulutuse ajalugu ja statistika
Avaldamiskuupäev
Vaatamiste arv
Ühenduse võtmised
Telefoninumbri vaatamised
Lemmikuks lisamised
Sarnased kuulutused

Näidislaenumakse

Laenutähtaeg: 20 a
Sissemakse: 30%
Intress alates: 3,5%