Müüa maatükk, ärimaa - Alevi tn 5, Imavere, Järva vald, Järvamaa

Krunt 1025

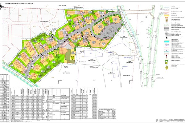
Kehtiv detailplaneering.
Asub Imavere keskuses. Läheduses asuvad poed, kool, lasteaed, Tikupoiss (taluturg ja toitlustus), valla teeninduspunkt, tanklad, Navesti jõgi, Eesti Piimandusmuuseum, kõrts.
Imaveres on palju töökohti tänu seal asuvatele suurtele tootmisettevõtetele.
Lubatud ehitada ärihoone. Parkimiskohti krundil 12tk. Ärihoone lubatud suurim kõrgus 15m. Lubatud 4 korrust.
Ehitusalune pind 600m2, täisehituse protsent 59%.
Lubatud katusekalle 0-10.
Välisseinte materjal hele krohv, katusel rullmaterjal.
Hind ei sisalda teede ja tehnovõrkude väljaehitamist ega liitumist tehnovõrkudega.

Võimalik osta ka kõrval asuvaid ärimaa kinnistuid:
1. 1013m2, 23401:003:0127, 8000€
2. 321m2, 23401:003:0123, 3000€
3. 668m2, 23401:003:0122, 7000€
4. 743m2, 23401:003:0128, 6000€

Kuulutuse link

Võta ühendust

Kirja saatmisel nõustud KV.EE kasutustingimuste ja andmekaitsetingimustega
AleviKinnisvara OÜ
AleviKinnisvara OÜ
Vaata firma profiili
Võta ühendust
7 000 € 6.83 €/m²
Müüa maatükk
Müüa maatükk www.kv.ee/3517140
Krundi pind 1025 m²
Katastrinumber 23401:003:0124
Registriosa number 2793536
Andmed kinnistusraamatust
Teata ebakorrektsest kuulutusest

SAA ÜLEVAADE KUULUTUSE KÄEKÄIGUST!

Kuulutuse siseinfo 14.99€ / 24
Kuulutuse ajalugu ja statistika
Avaldamiskuupäev
Vaatamiste arv
Ühenduse võtmised
Telefoninumbri vaatamised
Lemmikuks lisamised
Sarnased kuulutused

Näidislaenumakse

Laenutähtaeg: 20 a
Sissemakse: 30%
Intress alates: 3,5%