Terve hoone Tallinn-Tartu mnt tuiksoonel!
Kogupind 582.5 m², Kinnistu
Sanruum: dušš, saun, lokaalne vesi, ventilatsioon
Küte ja ventilatsioon: õhksoojuspump, kombineeritud küte
Köök: köök, köögimööbel
Side ja turvalisus: Internet, videovalve
Lisainfo: parkett, elekter, sissepääs tänavalt, parkimine tasuta
Ümbrus: teed heas seisukorras, äärelinnas, ümbruses lao- ja tootmishooned
Alates 1. jaanuarist 2026 on üürile anda esinduslik kahekorruseline äripind kogupinnaga 585,5 m² kiiresti arenevas Peetri alevikus, otse Tartu maantee ääres. Hoone asukoht, kaasaegne arhitektuur ja suured vitriinaklaasid kaubanduspoolel loovad valgusküllase ja avara atmosfääri ning tagavad suurepärase nähtavuse möödujatele. Tänava ääres asuv LED-ekraan võimaldab teie ettevõttel oma tegevust tõhusalt reklaamida.
Hoones on kolm sissepääsu, mis tagavad mugava ligipääsu nii klientidele kui ka töötajatele. Esimesel korrusel paikneb avar müügisaal, mille kõrgus ulatub läbi kahe korruse, luues avara ja muljetavaldava ruumielamuse. Hoones on bürooruumid, koosolekuruum, puhkenurk, WC-d, saunaruum ja kööginurk, samuti suur laoruum. Teisele korrusele pääseb mugavalt nii müügisaali sisetrepi kaudu kui ka eraldi büroo poolelt.
Hoone on ümbritsetud aiaga, laopoolne osa on suletav väravaga ning parkla on tõkkepuuga. Lisaks on paigaldatud videovalve, mis tagab turvalisuse nii klientidele kui ka töötajatele.
Äripinna planeering on avatud ja funktsionaalne, sobides ideaalselt kaupluseks, näidistesaaliks, bürooks ja laoks. Ruumides on sundventilatsioon ja jahutus, küte on lahendatud oma õlikatlaga (aastas kulub umbes 32000 l õli) ning büroodes lisaks õhksoojuspumbad. Laadimine toimub maapinnaga tasapinnas oleva käiguukse ja tõstuksest (kõrgus 2,8 laius 3,0 m). Elektrivõimsus on piisav ning kanalisatsioon lahendatud 10 m³ lokaalse kogumispaagiga, mida tühjendatakse kord kuus. Soe vesi on tagatud 150l elektriboileriga.
Hoone esimene korrus on hästi läbimõeldud ja funktsionaalse ruumijaotusega, pakkudes kokku üle 430 m² pinda. Suurima osa moodustavad avar 180,5 m² laoruum ning 148,6 m² müügisaal, mis on sobilikud kaubanduse ja lao tööks.
Korrusel asub kolm tehnoruumi (5,6 m², 7,7 m² ja 2,0 m²), mis on planeeritud seadmete ja tehnosüsteemide tarbeks. Igapäevast tööd toetavad 9,3 m² esik, 1,9 m² abiruum, kaks 1,7 m² suurust WC-d, 10,6 m² köök ning kaks kabinetti (13,9 m² ja 13,6 m²).
Hoonele annab avarust ja valgust 40,2 m² suurune aatrium, sissepääsu juures lisab mugavust 2,6 m² tambur.
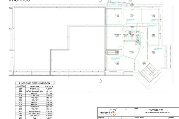
Teisel korrusel asuvad peamiselt töö- ja koosolekupinnad. Seal paiknevad 18,1 m² nõupidamisruum ning kuus eri suuruses kabinetti (12,1 m²; 13,5 m²; 13,0 m²; 12,4 m²; 17,9 m² ja 19,0 m²). Ruumijaotust ühendavad kaks koridori (4,5 m² ja 22,3 m²) ning sissepääsuks vajalik trepihall (1,8 m²). Lisaks asuvad korrusel 11,6 m² puhkeruum, duširuum (2,1 m²), leiliruum (2,7 m²), kaks WC-d (1,2 m² ja 1,6 m²) rõdu.
Kinnistul on suur parkla, mis on mugav nii klientidele kui töötajatele. Hoonele on hea juurdepääs nii autoga kui ühistranspordiga, lähim bussipeatus asub vaid 50 m kaugusel. Asukoht Tartu maantee ääres tagab suure liiklusvoo ja maksimaalse nähtavuse, lisaks on kiire ühendus Tallinna kesklinna, Ülemiste keskuse, lennujaama ja Tallinna ringteega. Peetri alevik on kiiresti arenev ja populaarne ärikeskkond, kus tegutsevad mitmed edukad ettevõtted.
Üür on 12000 € kuus, millele lisandub käibemaks. Lisaks tasub üürnik kommunaalkulud vastavalt tarbimisele. Lepingu sõlmimisel tuleb tasuda ühe kuu üür, kahe kuu tagatisraha ja lepingutasu ühe kuu üüri summas ehk kokku 48 000 EUR.
See on suurepärane võimalus ettevõttele, kes otsib hea asukohaga pinda nähtavas ja kiiresti arenevas piirkonnas, kus oma äri efektiivselt esitleda ja arendada. Helista ja lähme vaatama.




