Müüa korter, 3 tuba - Kallaste tn 5-27, Tabasalu, Tabasalu, Harku vald, Harjumaa

Uute alguste fond 10 000 €!

Korteriomand, kivimaja

Köök: elektripliit, avatud köök
Sanruum: dušš, vann
Küte ja ventilatsioon: põrandaküte, keskküte
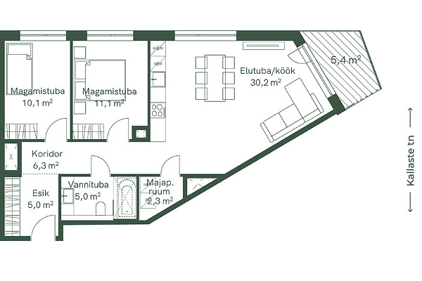
Lisainfo: rõdu 5.5 m², panipaik, toad eraldi, pakettaknad, kõrged laed, parkett, lift
Side ja turvalisus: Internet, videovalve, turvauks, trepikoda lukus
Ümbrus: meri lähedal, asub keskuses, teed heas seisukorras

Uue kodu ostmisel saad valida 10 000 € uue alguse fondi. Kasuta seda hinnasoodustusena, panipaiga, parkimiskoha, köögi või siseviimistluse kulude katteks – täpselt nii, nagu sulle sobib.

NIMELT SELLEL KORTERIL ON OMA VÄIKE MAJAPIDAMISRUUM JA VÕIMALUS VARASES OSTU FAASIS VALIDA NII VANNI KUI DUŠI VAHEL, VASTAVALT OMA EELISTUSELE.

Kas oled unistanud uuest kodust, mis asub armsas alevikus, mille läheduses on võimas pankrannik ja silmapiirini ulatuv meri, mille juurde viivad matkarajad ja teed, mille äärde jäävad uued koolid ja lasteaiad, kus käivad sinu lapsed, siis kui sina teed oma tööd kuskil kesklinnas, mis jääb kodust ainult 15 minuti autosõidu kaugusele.
Tule Tabasallu ja vii oma unistused ellu!

TABASALU PARGIKODU:

- 30 korteriga korterelamu
- 2-5-toalised korterid
- Igal korteril on rõdu või terrass
- Kõrged laed – 3m
- Lift hoones
- Kvaliteetne siseviimistlus, erinevad paketid
- Kogemustega ehitaja Mapri Ehitus
- Kõrgkvaliteetne maastikuarhitektuur
- Panipaigad jagratastele ja kärudele
- Tallinna kesklinna autoga 15-20 min
- Kogenud arendaja piirkonnas
- Maja valmis 2026 lõpp

KAASAEGNE ARHITEKTUUR JA PLANEERING
Tabasalu Pargikodu korterelamud projekteeriti tunnustatud PIN Arhitektide poolt, kes lähtusid Tabasalu aedlinnalikust atmosfäärist, et luua harmooniline ja looduslähedane elukeskkond. Korterelamu ehitaja on kõrgeid kvaliteedistandardeid järgiv MAPRI Ehitus.

ENERGIATÕHUSUS
Kõik hooned kuuluvad A-energiaklassi, mis tähendab madalaid ülalpidamiskulusid ja mugavamat igapäevatoimetamist. Hoone küttevarustus tagatakse kaugküttevõrgust. Korterites on ruumipõhiselt juhitav vesipõrandaküte. Pesuruumides elektriline põrandaküte.

TARGA KODU LAHENDUS
Korterelamus ehitatakse välja Bisly Targa kodu lahendus. Nutikodu juhtekraanilt saab korteriomanik: avada välisust ja näha uksetagust kaamerapilti; reguleerida kütet (jahutust) ja ventilatsiooni; lülitada välja kogu korteri valgustust; vaadata arvestite näite. Loomulikult saab kõiki Targa kodu lahendusi juhtida distantsilt nutitelefoniga.

INTERJÖÖR JA VIIMISTLUS

Tabasalu Pargikodu siseviimistlusvalikud said inspiratsiooni Tabasalu loodusmotiividest ja looduslikest kivimitest.

Kõik vajaliku kodu sisustamiseks leiad meie heade koostööpartnerite juurest. Reterra klientidele kehtivad eripakkumised.

ASUKOHT

Tabasalu asub Tallinna kesklinnast ainult 15-20 autosõidu kaugusel. Rocca Al Mare keskus jääb 10 minut kaugusele. Samas on kõik igapäevaeluks vajalik siin käe-jala juures. Uus Tabasalu keskus oma poodide, restoranide-kohvikute ja teeninduspunktidega; koolid ja lasteaiad; mitmete pallimänguväljakutega spordikompleks, tenniseväljakud ja fitness-klubi.

ROHELINE ELUKESKKOND
Tabasalu asub looduslikult kaunis Kakumäe lahe piirkonnas ning alevik on aedlinnalikult roheline ning hästi hoolitsetud. Jalutuskäigu kaugele jäävad võimas Tabasalu pankrannik, rand ja meri, Tabasalu looduspark, Rannamõisa maastikukaitseala ja terviserajad.

PANIPAIGAD JA PARKIMISKOHAD
Igale korterile on ette nähtud üks parkimiskoht.

VALMIMINE
Korerelamu valmib 2026. aasta lõpus. Arendust ehitab hinnatud ehitusfirma Mapri Ehitus.

ARENDAJA

Reterra on olnud viimastel aastatel üks suurimaid elamuarendajaid Eestis. Lisaks sadadele uutele kodudele Tallinnas, Tartus ja Riias oleme loonud innovaatilised äripinnad IT- ja telekomiettevõtetele nagu Telia, Pipedrive ja Heathmont Group. Pargikodud pole Tabasalus meie esimene projekt – 2022. aasta lõpus saime siin valmis uue ja moodsa Tabasalu Keskuse.

Kas soovid elada looduskaunis, hubases ja mugavas keskkonnas?

Võta meiega ühendust ja tule oma uue koduga tutvuma!
Vaata lisaks: www.tabasalupargikodu.ee

Kuulutuse link

Selle uusarenduse kuulutused

Võta ühendust

Kirja saatmisel nõustud KV.EE kasutustingimuste ja andmekaitsetingimustega

Uusarendus

Uusarendus

Tabasalu Pargikodu

Kallaste 5 Tabasalu
Vaata uusarendust
Võta ühendust
Helena-Laura Lesment Kasutaja on autentitud
Reterra Estate OÜ
254 900 € 3 636 €/m²
Müüa korter
Müüa korter www.kv.ee/3762047
Tube 3
Magamistube 2
Üldpind 70.1 m²
Korrus/Korruseid 4/4
Ehitusaasta 2026
Seisukord Uusarendus
Omandivorm Korteriomand
Katastrinumber 19801:001:4573
Energiamärgis A
Andmed kinnistusraamatust
Teata ebakorrektsest kuulutusest
Kuulutuse siseinfo 14.99€ / 24
Kuulutuse ajalugu ja statistika
Avaldamiskuupäev
Vaatamiste arv
Ühenduse võtmised
Telefoninumbri vaatamised
Lemmikuks lisamised

KORTERI HINNAKALKULAATOR

Sarnased kuulutused

Näidislaenumakse

Laenutähtaeg: 20 a
Sissemakse: 30%
Intress alates: 3,5%