Eristuva arhitektuuriga perekodud!
Korteriomand, kivimaja, kogupind 115 m²
Sanruum: dušš, wc ja vannituba eraldi, saun, vann, kanalisatsioon, tsentraalne vesi
Küte ja ventilatsioon: põrandaküte, maaküte
Side ja turvalisus: Internet, telefon, turvauks, naabrivalve, aiaga ümbritsetud
Lisainfo: terrass, panipaik, ühistransport, parkett, parkimine tasuta, pakettaknad, elekter, rullmaterjalist katus
Ümbrus: ümbruses eramud ja korterelamud, äärelinnas, teed heas seisukorras, naabrid kõrval
Järvekülla on kerkimas uus silmapaistva arhitektuuriga 169 koduga elamupiirkond. Järveküla hästi arenenud kaasaja nõudmistele vastav keskkond koos linnaläheduse, linnale omase kärata, teeb sellest piirkonnast kõrgelt hinnatud elupaiga.
***
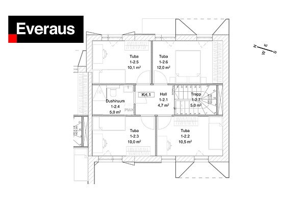
Korter nr 1 on 5-toaline suurusega 115 m2, 23,9 m2 terrassi ja 366 m2 hoovialaga. Korteris on avatud köögiga elutuba ja neli magamistuba, teisel korrusel ka vann. Korterile lisab avarust õhtupäikesele avatud terrass.
A-energiamärgisega (arvutuslik energiatõhusus) majadesse tulevad läbi kahe korruse planeeringuga õueala ja terrassiga kodud. Igas majas on neli korterit. Maaküte ja korteripõhine soojustagastusega ventilatsioon ning päikesepaneelid katusel säästavad keskkonda ja küttekulusid ning tagavad parema elukvaliteedi. Igasse korterisse paigaldatakse individuaalne energiatarbimisarvesti.
Korteri hinnas sisaldub panipaik ja kaks parkimiskohta.
Kindluse Kodu esimene etapp valmib 2026. aasta hilissuvel.
Kindluse Kodu elamukvartal, mis paikneb vähem kui 15-minutilise autosõidu kaugusel Tallinna südalinnast, pakub lühikese jalutuskäigu kaugusel kõike seda, mis eluks vajalik: mitmed lasteaiad-hoiud ja koolid, kauplused ja söögikohad, spordihooned ja -rajatised, ühistranspordipeatused. Elu nagu linnas, kuid märksa rahulikum ja turvalisem.
HARIDUSASUTUSED:
Kindluse kool: 300m
Järveküla kool: 900m
Järveküla lasteaed: 600m
Sõnajala lasteaed: 2km
TRANSPORDIÜHENDUS:
Bussipeatus (Kindluse): 100m
KAUBANDUS:
Järveküla Rimi: 900m
Peetri Selver: 4km
Peetri Keskus: 3,4km
Ülemiste Keskus: 7km
Järve Keskus: 12km
SPORT JA VABA AEG:
Järveküla spordihoone: 900m
Kindluse spordihoone: 200m
Peetri tennisekeskus: 3km
Uuesalu ujumiskoht: 3km
Rohkem infot Kindluse Kodu uusarenduse kohta leiad https://kindlusekodu.everaus.ee.
Everaus Kinnisvara on pikaajalise kogemusega kinnisvaraarendaja, kes rajab energiatõhusaid omanäolise arhitektuuri ja kasutajamugava planeeringuga terviklikke elu- ja ärikeskkondi hea infrastruktuuriga asukohtadesse. Pöörame arendustegevuses suurt tähelepanu arhitektuurile, kasutusmugavusele ja energiatõhususele. Ehitiste ruumilahendused on põhjalikult ja kaalutletult läbi mõeldud ning jälgime, et ehitiste välis- ja siseilmed moodustaksid ühtse modernse terviku. Oleme suunanäitajad ja trendiloojad. Auhinnatud kodud Uuesalu Kodus, Lagedi Kodus ja Keila Kodus on kodud, mille üle oleme uhked nii meie kui sealsed elanikud.
*Müügikuulutuses kuvatavad 3D-pildid on illustratiivsed ning müügiplaanides võib esineda ebatäpsusi.




