Müüa korter, 5 tuba - Sepa tn 28-16, Põhja-Tallinn, Tallinn, Harjumaa

Vau, milline vaade ja mere ääres.

Korteriomand, kivimaja

Sanruum: uus torustik, dušš, vann, wc ja vannituba eraldi
Küte ja ventilatsioon: põrandaküte, keskküte
Lisainfo: rõdu 99 m², parkimine tasuline, lift, parkett, pakettaknad, toad eraldi, terrass, uus elektrijuhtmestik, panipaik
Side ja turvalisus: Internet, telefon, trepikoda lukus
Ümbrus: ümbruses korterelamud, äärelinnas, teed heas seisukorras, naabrid ühel pool, veekogu: Kopli laht 50 m

Kahe rõduga, vaatega merele, nii mere ääres.

SOODUSHIND 745 000 EUR.

"Nii mere ääres ja sellise vaatega korter merele" - seda lauset hakkavad teie sõbrad teile väga tihti ütlema. Pakume teile atraktiivset ja erilist 5-toalist korterit - kahe rõduga, vaatega merele, nii mere ääres. Nii ongi.

Teie uus kodu mere ääres Põhja-Tallinnas aadressil Sepa tn 28. Maja piirneb ühest küljest merega. Ainulaadne.
Kodul on ka nimi Merevaate residents, vaata ka hiljem www.merevaade.ee

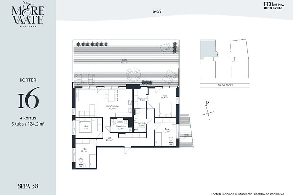
PAKUME TEILE UUE KORTERMAJA UUT 5-TOALIST KORTERIT (nr 16):
+ viimistletud 5-toaline korter 124,2 m2 (sh I korruse panipaik 2,7 m2)
+ suur merevaatega rõdu 99 m2, kuhu pääseb nii elutoast kui suurest magamistoast
+ suure magamistoa suurus 15,7 m2, kus lisaks walk-in garderoob suurusega 5,3 m2
+ teine rõdu jääb ühe väiksema magamistoa (tuba 12,2 m2) personaalseks rõduks, 8,2 m2
+ lisaks veel 2 magamistuba suurustega 11,1 m2 ja 12,3 m2
+ elutoast hunnitu vaade läbi avarate klaasuste merele
+ suur vannituba vanniga 5,8 m2, (ka wc)
+ eraldi duššiga vannituba 5,2 m2 (ka wc)
+ kvaliteetsed siseviimistlusmaterjalid ja siseviimistluslahendused, mis on disain Liis Tippeli poolt kokku pandud kombinatsioon kõigist kolmest siseviimistluspaketist;
+ korteris on kaugkütte baasil vesipõrandaküte
+ korteri hinnas panipaik maja 0-korrusel suurusega 2,7 m2
+ korteri hinnale lisandub kahe autokoha maksumus
+ merevaade ja meretuul on hinna sees!

KORTERMAJA ISELOOMUSTAVAD MÕNED MÄRKSÕNAD:
- vaade merele peaaaegu kõigi korterite akendest
- päikeseküllased lõunapoolsed 3-toalised korterid
- atraktiivsed 4-5 toalised merepoolsed perekorterid
- mõlema maja 5. korrusel on üks luksuslik suurte terrassidega ja avara merevaatega penthouse-korterid
- läbimõeldud hooviala koos promenaadi ja käiguteedega
- hoone ehitatakse b-energiaklassi
- 2-aastane ehitusgarantii
- hoone kandvad sise- ja välisseinad ehitati monteeritavatest betoonplokkidest, hoone vahelaed on monteeritavatest
õõnespaneelidest
- korterite ventilatsioon - korteripõhine soojustagastusega ventilatsiooni lahendus
- elektriautode laadimise võimalus - osadele parkimiskohtadele on loodud laadimise valmidus, laadijaid ei ole paigaldatud
- rattaparklad - välised rattaparklad on kavandatud kummagi hoone peasissepääsu lähedale
- maja ja korter on valmis sissekolimiseks!

KAASAEGSETE TEHNILISTE LAHENDUSTEGA KORTERMAJA
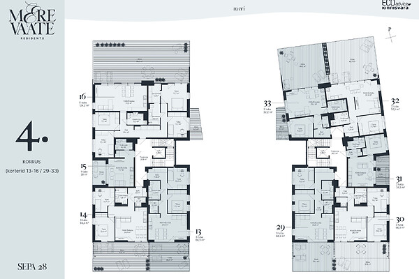
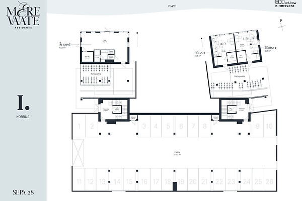
Kahes hoonemahus uus kortermaja on 5 -korruseline, mida ühendab 1-korrusel olev parkla. Majades on kokku 34 korterit ja 3 äripinda. Korterid on 1- kuni 5- toalised suurusega 28 – 132 m2, kõigil korteritel on rõdu. Kõigi korterite juurde kuulub 0-korrusel asuv panipaik ja igale korterile on arvestatud 1 või 2 autokohta maja 1. korrusel või hoovialal. Merevaatega äripinnad on hoonete 1-korrusel, suurused 30-63 m2.

Hoone esimesele korrusele on kavandatud autoparkla, jalgrataste parkla (piiratud metallist võrkseinaga), korterite panipaigad. Välised rattaparklad on kavandatud kummagi hoone peasissepääsu lähedale. Hoone fassaadilahendus on kombineeritud sile valge ja hall betoonpind ning valge matriitsiga betoopind.

Kinnistu ning sellega külgnev mereäärne promenaadilõik kavandatakse seni väljaehitatud Kopli liinide rannapromenaadiga ühtseks tervikuks. Hoone blokkide vahele on mere poole kavandatud haljastatud nõlv, mis katab ka hoone maa-alust korrust. Haljastatud nõlvale on kavandatud puidust maastikutrepp, mis viiakse kokku kinnistule kavandatud kergliiklusteega.

Kortermaja territooriumil on lasteala, treeningplats kui ka istumisalad.

NB-1 Korteri hinnale lisandub parkimiskoha maksumus.
NB-2 Korteri müügihinna sisse kuulub panipaik.
NB-3 Arendaja ei müü korterit ilma parkimiskoha ega panipaigata.

KORTERMAJA VÄLITERRITOORIUM:
- hoovis laste mänguväljak
- maastikuarhitekti poolt kujundatud rikkalik ja läbimõeldud haljastuslahendus
- parkimine maja hoovis ja maja all 1-korrusel.

UUE KORTERMAJA ASUKOHT
Piirkonna kõige mereäärseim arendus. Hunnitud vaated Kopli lahele kinnistavad unikaalset asukohta Põhja-Tallinna ühes hinnatumas ja kaasaegsemas Kopli liinide asumis.

Tugeva ajaloolise taustaga mereäärne Kopli poolsaar, Paljassaare sadam ja Kopli liinide elukeskkond on Tallinna suurima arengupotentsiaaliga, kus tulevik on helgem kui mujal. Rohkelt privaatsust, looduslähedust, samas uued elu- ja ärikeskkonnad aitavad kaasa tervikliku keskkonna loomisele.

ARENDAJA/MÜÜJA
Arendusprojekti juhib ja pindade müüki korraldab ECO ADVICE KINNISVARA, mis on pikaajalise kogemusega ehituse ja kinnisvara sfääris tegutsevate ettevõtete grupp. Ettevõte juhib kinnisvara arendusprojekte, müüb uusi äri- ja elamispindu, investeerib arendusprojektidesse ning osutab kodu vahetamisega seotud teenuseid:
-elamispindade ehitustööde kvaliteedi kontroll,
-sisekujundus,
-omanikujärelevalve,
-klassikalised kinnisvara teenused.

Kuulutuse link

Selle uusarenduse kuulutused

Võta ühendust

Kirja saatmisel nõustud KV.EE kasutustingimuste ja andmekaitsetingimustega

Uusarendus

Merevaate residents

Sepa 28, Põhja-Tallinn, Tallinn
Uusarendus

Merevaate residents

Sepa 28, Põhja-Tallinn, Tallinn
Vaata uusarendust
Võta ühendust
Pille-Triin Urb Kasutaja on autentitud
Eco Advice OÜ
745 000 € 5 998 €/m²
Müüa korter
Müüa korter www.kv.ee/3644570
Tube 5
Magamistube 4
Üldpind 124.2 m²
Korrus/Korruseid 4/5
Ehitusaasta 2025
Seisukord Uusarendus
Omandivorm Korteriomand
Energiamärgis B
Andmed kinnistusraamatust
Teata ebakorrektsest kuulutusest
Kuulutuse siseinfo 14.99€ / 24
Kuulutuse ajalugu ja statistika
Avaldamiskuupäev
Vaatamiste arv
Ühenduse võtmised
Telefoninumbri vaatamised
Lemmikuks lisamised

KORTERI HINNAKALKULAATOR

Sarnased kuulutused

Näidislaenumakse

Laenutähtaeg: 20 a
Sissemakse: 30%
Intress alates: 3,5%