Müüa korter, 3 tuba - Aiandi 14-25, Uus-mustamäe, Mustamäe, Tallinn, Harjumaa

Soodsaim valik uusi kodusid!

Korteriomand, kivimaja

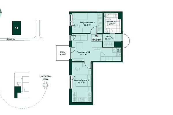
Lisainfo: rõdu 3.5 m², lift, panipaik
Side ja turvalisus: trepikoda lukus

LÄBIMÕELDUD PLANEERING JA KVALITEETNE SISEVIIMISTLUS
Uus-Mustamäele, aadressile Aiandi 14 valmib üheksakordne, kvaliteetsete korteritega elamu. Uutel kodudel on suured aknad ning hoolikalt läbimõeldud planeering, et kodus oleks ruumi asjadele ning hea olla igal pereliikmel.
Standardlahendusena on kodudes kasutatud heledamaid ja põhjamaiseid toone ning lisatasu eest on võimalus valida sisearhitekti poolt koostatud stiilipakettide vahel. Igal kodul on rõdu.

ENERGIATÕHUS KODU
Aiandi 14 korterelamu on modernsed ja funktsionaalsed. Soojustagastusega ventilatsioonisüsteem ja hea soojapidavus tagavad uues kodus kvaliteetse sisekliima ja madalad kodukulud. Uuele elamule omistatakse energiatõhus B-energiaklass.

PANIPAIK JA PARKIMINE
Korteri hinnas sisaldub panipaik, kus saad hoiustada suuremaid sporditarbeid või hooajaväliseid asju. Parkimiskohad on saadaval lisatasu eest ning asuvad väliparklas või majaaluses ja kõrval asuvates kaetud parklates.

NAABRUSKOND
Mustamäe ja Kadaka tee ristmiku piirkonnas, vaikses sisekvartalis asuv Uus-Mustamäe naabruskond on kaasaegseim terviklik elupiirkond Mustamäel, kus on valminud tänaseks juba 500 uut kodu. Naabruskonna südameks on ligi 7000 ruutmeetrine park, kus kogu pere leiab ühiseid ajaveetmisvõimalusi. Lisaks naabruskonna pargile asub kohe uute kodude kõrval mänguväljak väikelastele, et aega saaks mugavalt veeta ka kohe kodu kõrval. Vaata lisa: bonava.ee/mustamae

Loome kodusid ja naabruskondi, kus on hea elada!

Juhime tähelepanu, et pildid on illustratiivsed.

Kuulutuse link

Selle uusarenduse kuulutused

Võta ühendust

Kirja saatmisel nõustud KV.EE kasutustingimuste ja andmekaitsetingimustega
Võta ühendust
Andre Himuškin Kasutaja on autentitud
Bonava Eesti OÜ
Kärolin Koitla
Kärolin Koitla Kasutaja on autentitud
Bonava Eesti OÜ
234 990 € 4 280 €/m²
Müüa korter
Müüa korter www.kv.ee/3551162
Tube 3
Magamistube 2
Üldpind 54.9 m²
Korrus/Korruseid 6/9
Ehitusaasta 2024
Seisukord Uusarendus
Omandivorm Korteriomand
Energiamärgis B
Andmed kinnistusraamatust
Teata ebakorrektsest kuulutusest
Kuulutuse siseinfo 14.99€ / 24
Kuulutuse ajalugu ja statistika
Avaldamiskuupäev
Vaatamiste arv
Ühenduse võtmised
Telefoninumbri vaatamised
Lemmikuks lisamised

KORTERI HINNAKALKULAATOR

Sarnased kuulutused

Näidislaenumakse

Laenutähtaeg: 20 a
Sissemakse: 30%
Intress alates: 3,5%