A-energiaklass
Korteriomand, kivimaja
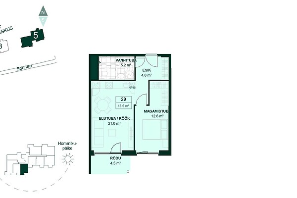
Lisainfo: rõdu 4.4 m², lift, panipaik
Kirsiõue – kaasaegne ja hubane kodupaik Sakus
Kirsiõue on uus naabruskond rahulikus ja looduslähedases Saku alevikus, kus elu kulgeb stressivabalt, kuid kõik vajalik on lähedal. Tallinnast vaid lühikese autosõidu või rongisõidu kaugusel asuv Saku on ideaalne valik neile, kes soovivad linnakärast eemalduda, kuid väärtustavad head ühendust pealinnaga – rongiga jõuab kesklinna vaid 19–23 minutiga.
Siin valmivad 2026. aasta suvel neljakorruselised A-energiaklassi korterelamud, mille katusel paiknevad päikesepaneelid aitavad kodukulud kontrolli all hoida. Valikus on kahe- kuni neljatoalised korterid suuruses 43,2–82,1 m² – kõik suurte akende ja läbimõeldud planeeringutega, et kodus oleks rohkelt valgust ja mugavalt ruumi igale pereliikmele ja kõigele vajalikule.
Igal kodul on rõdu või terrass, mida saab kujundada mõnusaks puhkealaks. Terrassiga korteris elades saad nautida privaatset õueruumi – astuda hommikul paljajalu murule, võtta päikest, istuda pere või sõpradega grillilõunaid nautides või luua endale roheline puhkenurk lillede ja maitsetaimedega. See on haruldane võimalus kogeda oma maja mugavust korterielus.
Hoovialal on lastele vahva mänguväljak ning grilli- ja puhkenurk vanematele. Kodu vahetus läheduses asub ka suurem mänguväljak, mis rõõmustab igas vanuses lapsi.
Korteri hinna sees on ka eraldiseisev panipaik, kuhu on mugav paigutada hooajaväliseid või suuremaid esemeid. Koduhoovis asuvad parkimiskohad ning elanike ühises kasutuses on rattaruum, kus hoida jalgrattaid ja lapsevankreid.
Saku on turvaline ja peresõbralik aedlinnak, kus lapsed saavad iseseisvalt liigelda kooli ja koju jalgratta või tõukerattaga. Siinses arenevas kogukonnas on olemas kõik, mida pere vajab – uued koolid ja lasteaiad, mitmekülgsed sportimisvõimalused, nagu padeliväljak, discgolfi rada ja ujula, ning rohkelt rohelust ja vaba ruumi. Saku ühendab endas väikelinna rahu ja kogukonnatunde ning Tallinna läheduse eelised – ideaalne paik, kus kasvatada lapsi, hingata vabamalt ja nautida kaasaegset elu looduse keskel. Kirsiõue on kodu, kuhu on alati hea tulla.
Tutvu lähemalt: bonava.ee/kirsioue
Juhime tähelepanu, et pildid on illustratiivsed!
Selle uusarenduse kuulutused
| Tube | Üldpind | Korrus | Hind | |
|---|---|---|---|---|
| 2 tuba | 43.3 m² | 3/4 | ||
| 2 tuba | 43.6 m² | 3/4 | ||
| 2 tuba | 43.2 m² | 4/4 | ||
| 2 tuba | 43.5 m² | 3/4 | ||
| 2 tuba | 43.2 m² | 3/4 | ||
| 3 tuba | 60.6 m² | 3/4 | ||
| 3 tuba | 60.6 m² | 2/4 | ||
| 3 tuba | 62.6 m² | 3/4 | ||
| 3 tuba | 59.3 m² | 3/4 | ||
| 3 tuba | 62.6 m² | 4/4 | ||
| 3 tuba | 59.3 m² | 4/4 | ||
| 3 tuba | 62.6 m² | 2/4 | ||
| 3 tuba | 59.3 m² | 2/4 | ||
| 3 tuba | 64 m² | 2/4 | ||
| 4 tuba | 76.8 m² | 2/4 | ||




